For more details and viewing please call DJW Property on Display phone number
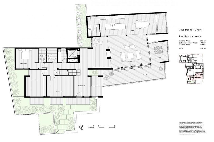
The ultimate lifestyle....This modern two level luxury residence commands a coveted position, just footsteps from the beach, park and ferry wharf. Created in a sophisticated contemporary style, the remarkable property offers a supremely spacious floor area of 390 sqm and incorporates the very finest finishes throughout. Perfect for those who like to entertain in grand style, the home features an immense open plan living space which stretches out to a large wrap-around deck with sparkling views across the bay.
Immense open plan living, lounge and dining space with stunning outlook
5 large bedrooms, main with water-facing balcony, WIR and deluxe ensuite
2nd bedroom with WIR, 3rd bedroom with ensuite, 5th bedroom/home office
4 luxury bathrooms, each featuring marble tiling and designer fixtures
Deluxe entertainers kitchen with marble counters and bar seating area
Butlers pantry, Ilve integrated dishwasher, ovens and induction cooktop
8 inch wide oak floorboards, zoned ducted air-conditioning, private lift
Advanced security with video intercom
Secure automatic garage with direct lift access and parking for four cars
Private entrance featuring a stylishly landscaped native garden
Sensational Sydney getaway, just a 10 minute ferry ride from Cronulla
Metres from a great selection of local shops, cafes and restaurants
No pets allowed.
If you have any enquiries please contact DJW Property direct on Display phone number









