For more details and viewing please call Fox Real Estate on Display phone number
Safe and secure investment or perfect home offering low maintenance, modern and open plan living.
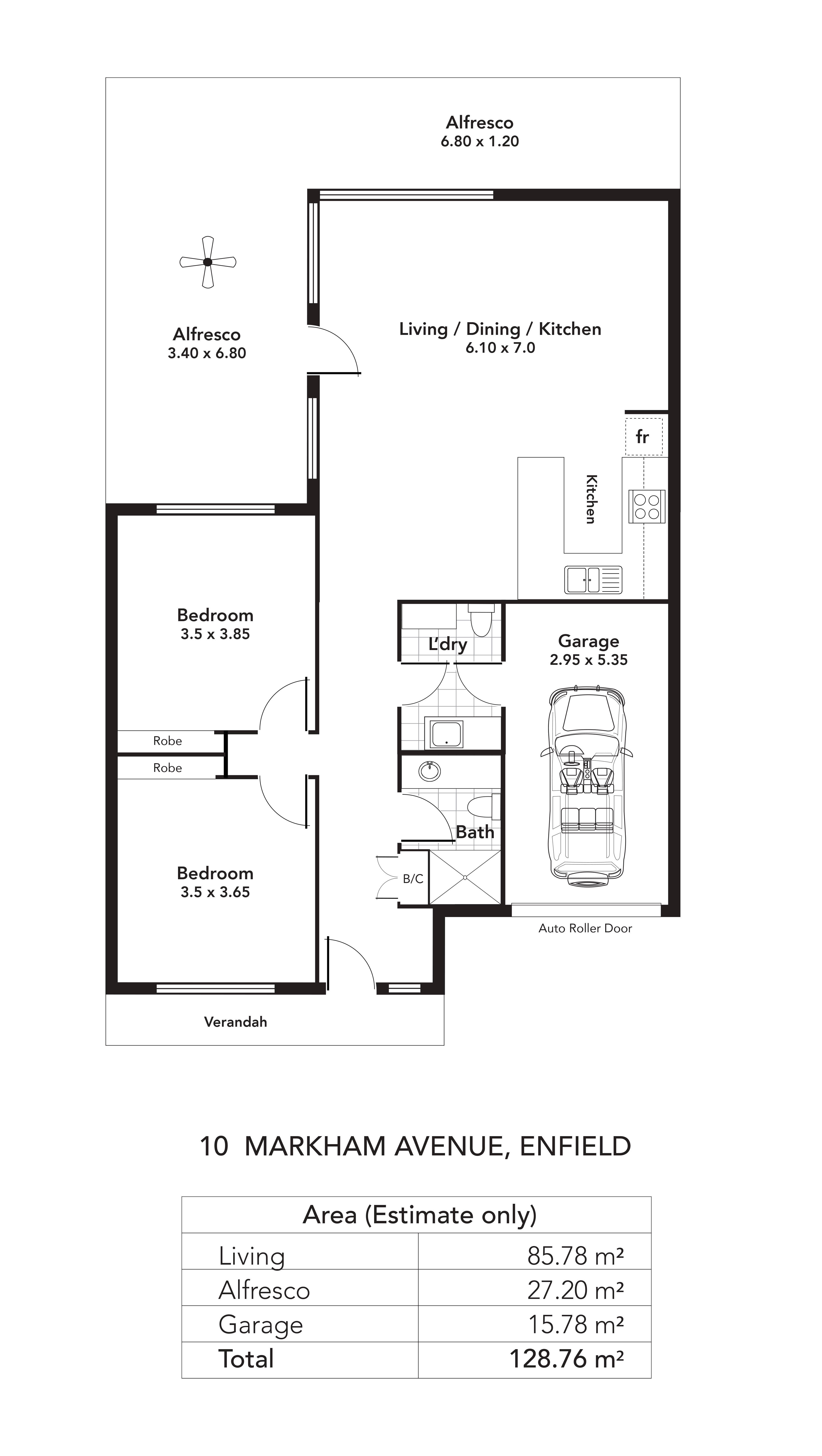
Introducing this immaculately presented 2 bedroom home, circa 2012, this one is sure to please. Located in a safe and secure off street setting, a smart floor-plan consists of 2 good sized bedrooms, large open plan living, undercover alfresco entertaining area, beautifully landscaped side yard, secure drive in garage, plus much more.
Features of the property include:
Ducted heating and cooling throughout
Stone bench tops to kitchen with stainless steel electric oven and cooktop
Peaked roof outdoor pergola with ceiling fans
Beautifully landscaped side garden
Rainwater tank
Second w/c to laundry
Gas hot water system
Ample storage to kitchen and laundry
Intercom
Off street visitor car parking
Built in robes to both bedrooms
Window furnishings throughout and the list goes on!
Location location, this property has not only been built with convenience in mind, it is also nestled in an area where convenience is of the up most importance. Quality schools including OLSH College & St Gabriels School plus Enfield and Northfield Primary Schools are within easy reach for the young family. Main North Road offers easy public transport direct into the city. Local shopping includes Northpark Shopping Centre, Enfield Plaza, Sefton & Regency Plaza. Located in the southern side of Enfield, amongst other newer homes and close to the amenities of Prospect. Simply move in and start living!
Council Rates $262 per quarter.
Strata $253.55 per quarter through Strata Data.
Strata Water solutions $262.44 per quarter
SA Water $174 per quarter
All information provided (including but not limited to the propertys land size, floor plan and floor size, building age and general property description) has been obtained from sources deemed reliable, however, we cannot guarantee the information is accurate and we accept no liability for any errors or oversights. Interested parties should make their own enquiries and obtain their own legal advice. Should this property be scheduled for auction, the Vendors Statement can be inspected at our office for 3 consecutive business days prior to the auction and at the auction for 30 minutes before it starts.
If you have any enquiries please contact Fox Real Estate direct on Display phone number


















