For more details and viewing please call RealWay Property Consultants Redcliffe on Display phone number
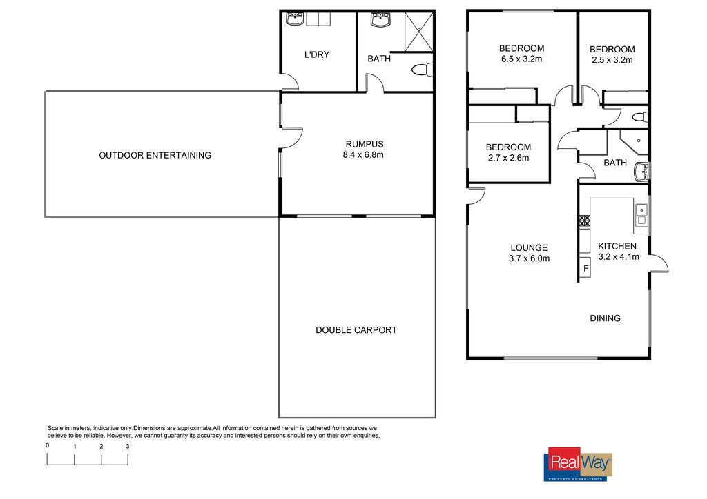
Upon entry to this beautiful property, you are immediately drawn to the wide frontage, vibrant garden and large covered entertaining area - a relaxing place to start your morning with a coffee in hand!
Continuing on the lower level of the property, it is evident how much space there is on offer, with a generous ground floor area that could double as an extra lounge room or rumpus space for the kids, and the benefit of a fully equipped downstairs bathroom.
Heading upstairs, youre greeted by an open plan formal lounge/dining with polished timber floor boards and air-conditioning that also services the dining area and stylish kitchen.
The large master bedroom has all the essentials including air-conditioning and a large built in wardrobe, but the two things that make this main bedroom unique is the natural light that comes in through the back windows and the breeze coming in from the east. Having the breeze come from the beach side makes this property ideal for those delightful Summer Queensland days.
The other two bedrooms have built-in wardrobes and are great spaces for the rest of the family. The main upstairs bathroom is perfectly positioned in the middle of all three bedrooms making this an ideal family home that is ready for you to move straight in to. For those wishing to renovate, the owner has approved plans available to any prospective buyer.
Other features include:
• Ceiling fans
• Breezy front deck
• Solar electricity and hot water
• Fully fenced pet friendly yard with garden shed
• Vegetable garden
• Crim-safe security screens and window locks throughout
Located so close to beaches and shopping, and only minutes to the bridge, this is truly a great property.
For you to capture everything that it has to offer, book an inspection in ASAP!
If you have any enquiries please contact RealWay Property Consultants Redcliffe direct on Display phone number

