For more details and viewing please call Philip Webb - Ringwood on Display phone number
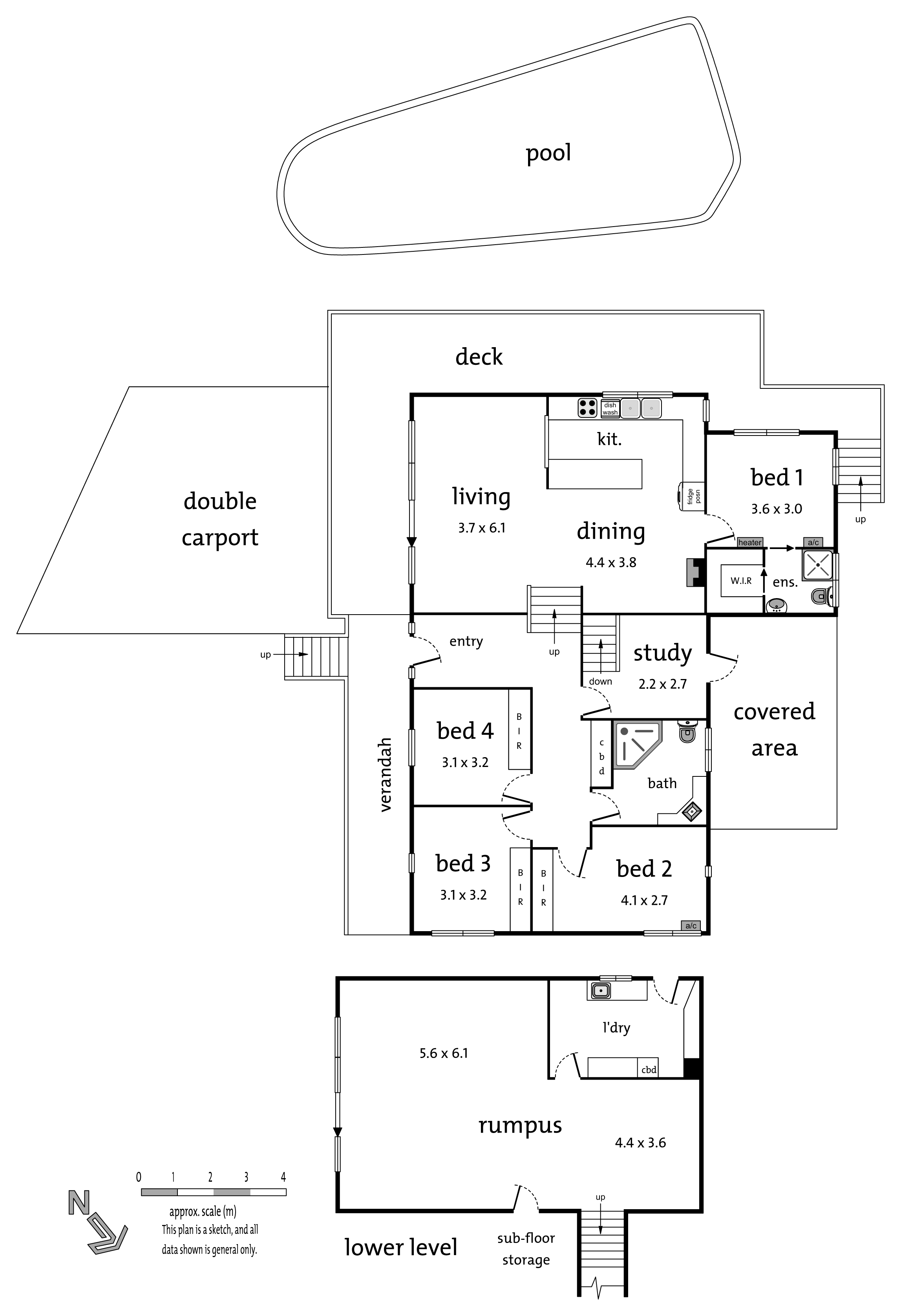
Spanning a sizeable garden allotment of 851sqm (approx.) in a quiet cul-de-sac, this charming four bedroom plus study home will instantly impress. Warm and inviting, its functional family design is complemented by Mount Dandenong views and plentiful natural light. A newly renovated kitchen with stone bench tops serves a generous open-plan living/dining area which opens to a spectacular deck overlooking the in-ground swimming pool. The master bedroom is offered with WIR and ensuite, while the other three feature BIRs and share an immaculate spa bathroom. Ideally zoned for Vermont Secondary College, this complete family package also includes a huge downstairs rumpus, split system heating/cooling, polished floorboards, sub-floor storage and a double carport.
If you have any enquiries please contact Philip Webb - Ringwood direct on Display phone number



