For more details and viewing please call Ian Hutchison Real Estate on Display phone number
Welcome to the high life. Soaring above Terrace Road, out to Langley Park and the Swan River, with panoramic views as far the eye can see. Centrally located in Perth city this penthouse wont disappoint. A rare opportunity presents itself to purchase this amazing property….
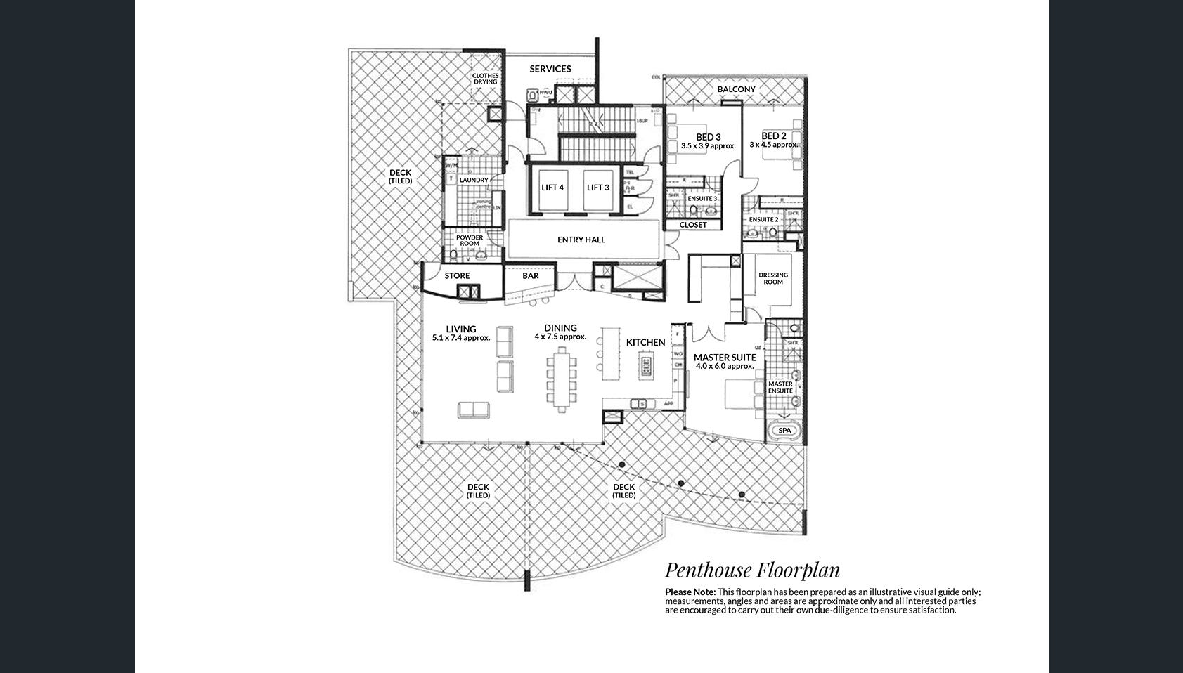
Altair Waterfront apartment complex is first class with secure parking and well presented foyer. The lift gives you direct access to the penthouse with a formal entrance leading into the expanse of open plan contemporary living with floor to ceiling windows leading out to the massive balcony with stunning 270 degree uninterrupted views which extend from the Darling escarpment, across Melville water to Fremantle and Kings Park, Elizabeth Quay, Perth city skyline and inner city suburb of South Perth.
The penthouse boasts 3 large bedrooms, 4 bathrooms, 3 car spaces, quality fixtures and fittings. A remarkably spacious and modern kitchen, perfect for entertaining, with granite benchtops, ample storage space, Miele & Gaggenau appliances incl. dishwasher, steamer, griddle & coffee machine. The kitchen overlooks the dining / living area the massive 212sqm high quality wrap-around entertainers balcony out to the impressive views.
There is a custom designed office with views from the desk. Opposite is plenty of storage located behind the built in doors and drawers.
The master bedroom suite has river views, balcony access, ensuite with floor to ceiling porcelain tiles, double vanity, separate shower, spa and separate WC with a large walk in dressing room.
There are two additional king size bedrooms with ensuites & BIR leading onto a private, north-facing 10sqm balcony.
The penthouse has access to the resort-style shared facilities include:
- TWO swimming pools, heated all year, incl. 25m lap pool.
- Fully equipped gym, sauna & spa.
- Table tennis & full-size snooker tables.
- Two residents lounges.
- Library & meeting room.
- Communal workshop/craft room.
- Communal herb, fruit and vegetable garden.
- Full size tennis court.
- Excellent security.
- On-site building manager.
Other features within the penthouse are
- Dimmable LED lighting throughout.
- Ducted reverse cycle air-conditioning.
- Enormous laundry (with full city views!)
- Spotted Gum timber flooring, custom Luxaflex Verishade blinds & and motorised external Issey blinds.
- Enjoy high speed internet with two optic fibres into the building.
- Gas & Water usage included in strata fees.
- Audio visual security access intercom.
- Secure double lift access directly into your home - no shared lift lobby.
- Secure double lock up garage on ground floor next to a 3rd car space.
- Secure 10sqm storeroom in basement.
Perfectly located on Langley Park, you are just a short walk to Elizabeth Quay, Perth Concert Hall, Supreme Court Gardens and Perth CBD shopping malls. Also, situated not far from Crown Resorts and Optus Stadium, this spacious residence within Altair Waterfront Apartments presents an unmissable opportunity to live the high life.
Council Rates: $3,732.95 pa
Water Rates: $2,547,93 pa
Strata Levy: $10,120.90 pq (Admin Fund $9,053.24 pq & Reserve Fund $1,067.66 pq)
If you have any enquiries please contact Ian Hutchison Real Estate direct on Display phone number



