For more details and viewing please call Fox Real Estate on Display phone number
Securely positioned within a gated community group - simply move in and enjoy.
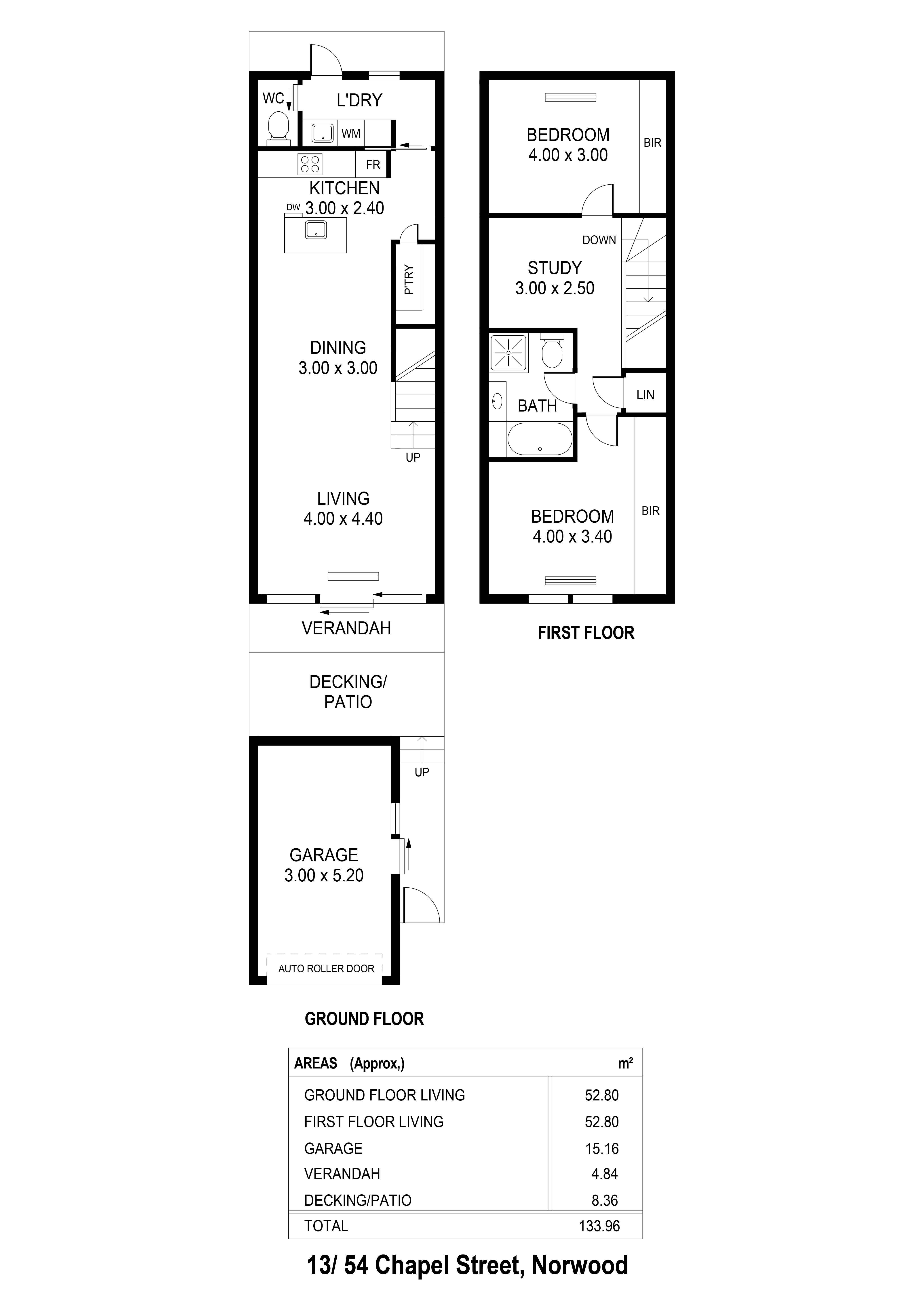
Enjoy a free flowing floor plan set over 2 levels and finished with quality appointments throughout. Enter from the private decked courtyard and step into the light and airy open plan living and dining where floor to ceiling doors stack open to provide an ideal space to entertain. Adjacent is the sleek white kitchen with island bench and large pantry cupboard providing valuable storage space for everyday essentials.
Upstairs, both generous size bedrooms feature built-in robes, a centrally located fully tiled bathroom and there is also an additional living or private study area.
Live-in or invest – dont hesitate to secure your future, the quintessential Norwood lifestyle awaits.
• Security entry to group via auto gates plus intercom entry and security system
• Auto roller door to lock up carport with direct access to courtyard entry
• Ducted reverse cycle air conditioning
• Polished timber floors and plush carpets
• Quality cabinetry
• 2nd Toilet downstairs
All information provided (including but not limited to the propertys land size, floor plan and floor size, building age and general property description) has been obtained from sources deemed reliable, however, we cannot guarantee the information is accurate and we accept no liability for any errors or oversights. Interested parties should make their own enquiries and obtain their own legal advice.
If you have any enquiries please contact Fox Real Estate direct on Display phone number




















