Philip Webb - Ringwood

15A MOUNTAIN VIEW ROAD KILSYTH 3137

Stress-Free Serenity

Reference : RY41WGG3

15A Mountain View Road, KILSYTH, 3137

Private, secure and delightfu

  • 2 Bathroom(s)
  • Plot Area of 210 m2
  • 3 Bedroom(s)
  • Parking of 1
  • A/C Airconditioned Room(s)
$595,000 - $635,000

15A Mountain View Road, KILSYTH, 3137

Private, secure and delightfu

  • 2 Bathroom(s)
  • Plot Area of 210 m2
  • 3 Bedroom(s)
  • Parking of 1
  • A/C Airconditioned Room(s)
  • bed3
  • shower2
  • car1

Stress-Free Serenity

Property Summary

Reference : RY41WGG3 Type : Townhouse
Car park : 1 Bedroom : 3
Bathrooms : 2 Price :
$595,000 - $635,000

15A Mountain View Road, KILSYTH, 3137

Private, secure and delightfu...

  • 2 Bathroom(s)
  • Plot Area of 210 m2
  • 3 Bedroom(s)
  • Parking of 1
  • A/C Airconditioned Room(s)
m2/acres : (Not Available) Land Size : 210 m2

Open for Inspection Time

Contact agent for more information

For more details and viewing please call Philip Webb - Ringwood on Display phone number


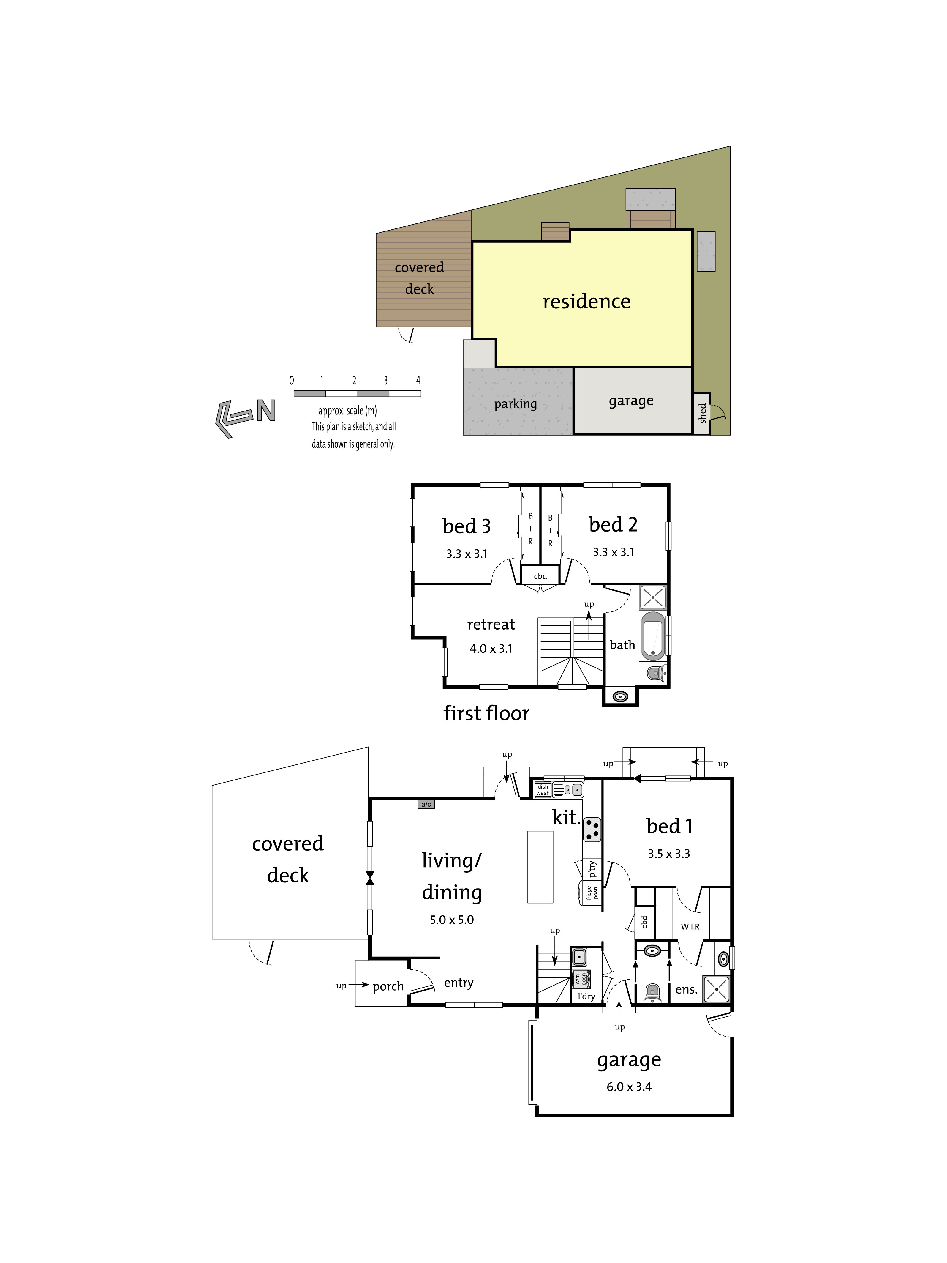
Private, secure and delightfully low maintenance, this superb three bedroom townhouse is located in the very heart of Kilsyth. With light-filled space and contemporary styling featured across both levels, admire the premium finishes including glossy timber floorboards, ducted heating, air conditioning, high ceilings and LED downlights. Perfectly placed on the entry level, the master bedroom is offered with a large walk-in robe and ensuite while the remaining bedrooms enjoy private positioning upstairs alongside a family bathroom and retreat/second living area. Overseen by a stylish kitchen with S/S appliances, the open-plan living and dining area is bright and airy with direct access to the covered deck for easy entertaining. Quietly located at the rear of two, also included is a remote garage with internal access. Leave the car at home and relish walking to nearby amenities with Churinga Shopping Centre, Kilsyth Primary School and bus services all close by. Both Croydon and Mooroolbark Train Stations are also easily accessible. To makes this townhouse perfect, the home is fitted with a modern wireless alarm system supported by wireless CCTV cameras for extra security and self-monitoring.

Our advertised Open For Inspections are By Registration only. Please contact the agent first to register your attendance.

***PhilipWebb Real Estate Coronavirus Update***

The health of our valued clients and staff is our highest priority. Please note the following changes to our open for inspection processes as we navigate the current Coronavirus (COVID-19) situation.

*Our advertised Open For Inspections are By Registration only. Please contact the agent first to register your attendance.
*Please maintain safe social distancing of 1.5m from anyone in attendance at the inspection, including PhilipWebb staff
*Avoid touching surfaces including fittings and fixtures within the property
*Hand sanitiser is provided

We kindly ask that you refrain from attending an inspection if you:

*Are experiencing flu-like symptoms
*Have tested positive to, or have recently been in contact with someone diagnosed with Coronavirus
*Have recently travelled overseas or have been in direct contact with someone who has

We’re all in this together and we thank you for your understanding.

If you have any enquiries please contact Philip Webb - Ringwood direct on Display phone number

 

Statement of information

Features


Nearby-Info

School

Train Station

Petrol Stations

Park

Banks

Shopping

Hospitals

Restaurants

Philip Webb - Ringwood

More Properties from Philip Webb - Ringwood