For more details and viewing please call Ian Hutchison Real Estate on Display phone number
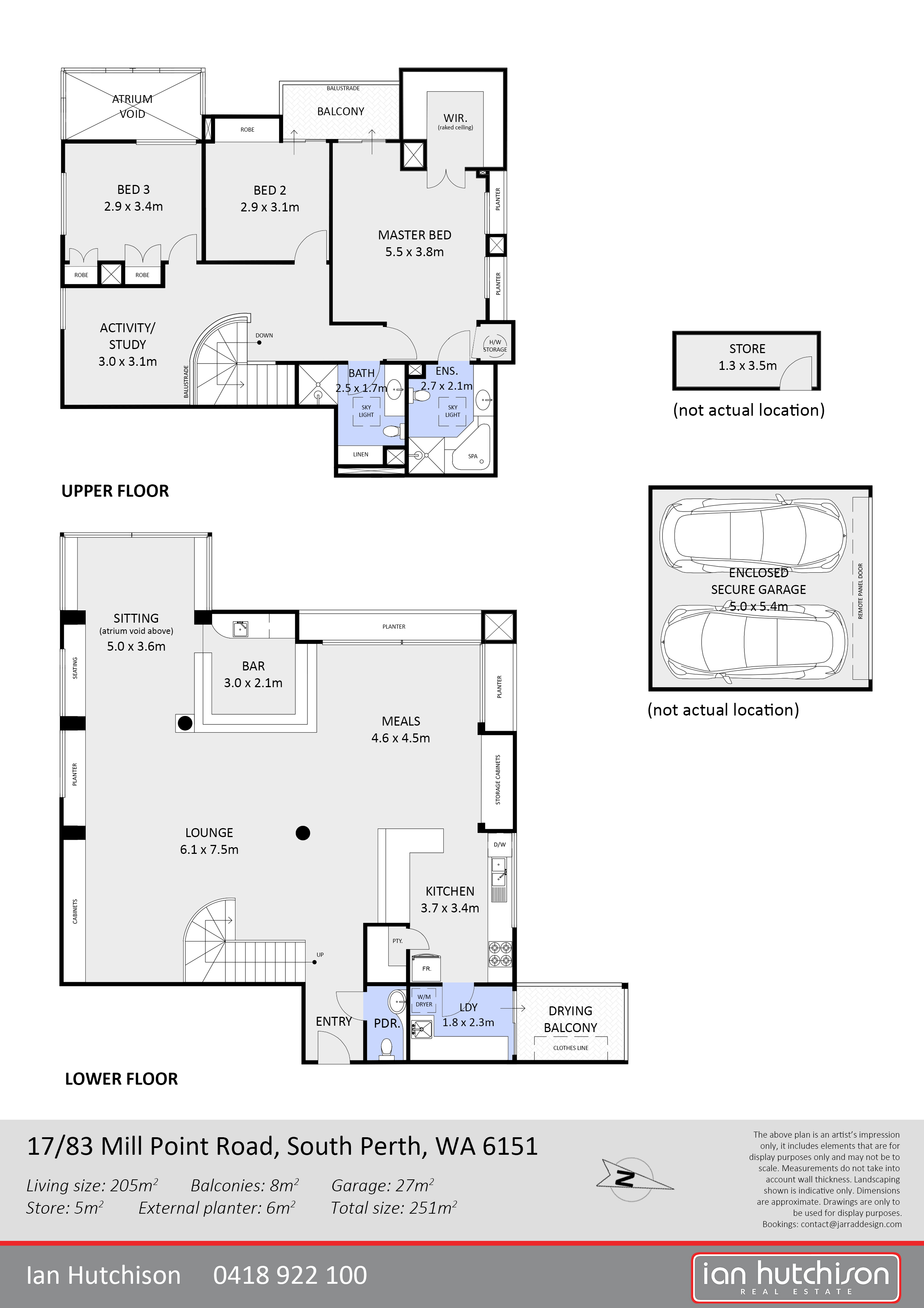
WHEN SIZE MATTERS……… 205sqm of internal living area in this HUGE Penthouse Apartment featuring enormous entertainers size living and dining area, 3 BEDROOMS (ALL with built in or walk in robes), 2 BATHROOMS and an open area style home office or sitting area situated on the much sought after Mill Point Peninsula, situated within a very short stroll of Mends Street Shopping area with cafes and restaurants to suit most tastes, boutiques, Windsor Hotel, Zoo, Ferry to the City and also the picturesque River Foreshore parklands, cycle and walking paths PLUS easy access to most suburbs via the Perths Freeway with entry/exits close by.
Additional features of this very unique Penthouse include VIEWS of the CITY and KINGS PARK, powder room, ENORMOUS entertainers size living and dining area with "Host Style Walk in Bar" with lots of storage; open plan style Chefs kitchen with lots of bench space and walk in Pantry; adjoining casual meals area; ensuite to master bedroom suite with spa, separate shower recess and WC; family bathroom and laundry with access to balcony. There is also a double garage and separate storeroom.
The many stand out features of this penthouse include….
* Security development
* The living room is so spacious and flexible that you can separate the whole area to create individual used areas
with prudent use of furniture.
* The master bedroom and one of the additional bedrooms both have access to a balcony...... and many more
This outstanding Penthouse is located near one of the last bus stops to the City OR you can even walk to the City and within easy access to Royal Perth Golf Club, Richardson Park and most other sporting clubs; Wesley, Penrhos, Trinity and Aquinas Colleges together with South Perth Primary and St Columbas for Junior education.
Your viewing of this very different Penthouse is a MUST! Phone Ian Hutchison on 0418922100 to arrange.
Council Rates: $2,860.98 pa
Water Rates: $1,496.44 pa
Strata Levy: $4,069.00 pq (Admin Fund $3,433.pq & Reserve Fund $636 pq)
If you have any enquiries please contact Ian Hutchison Real Estate direct on Display phone number



