For more details and viewing please call Fox Real Estate on Display phone number
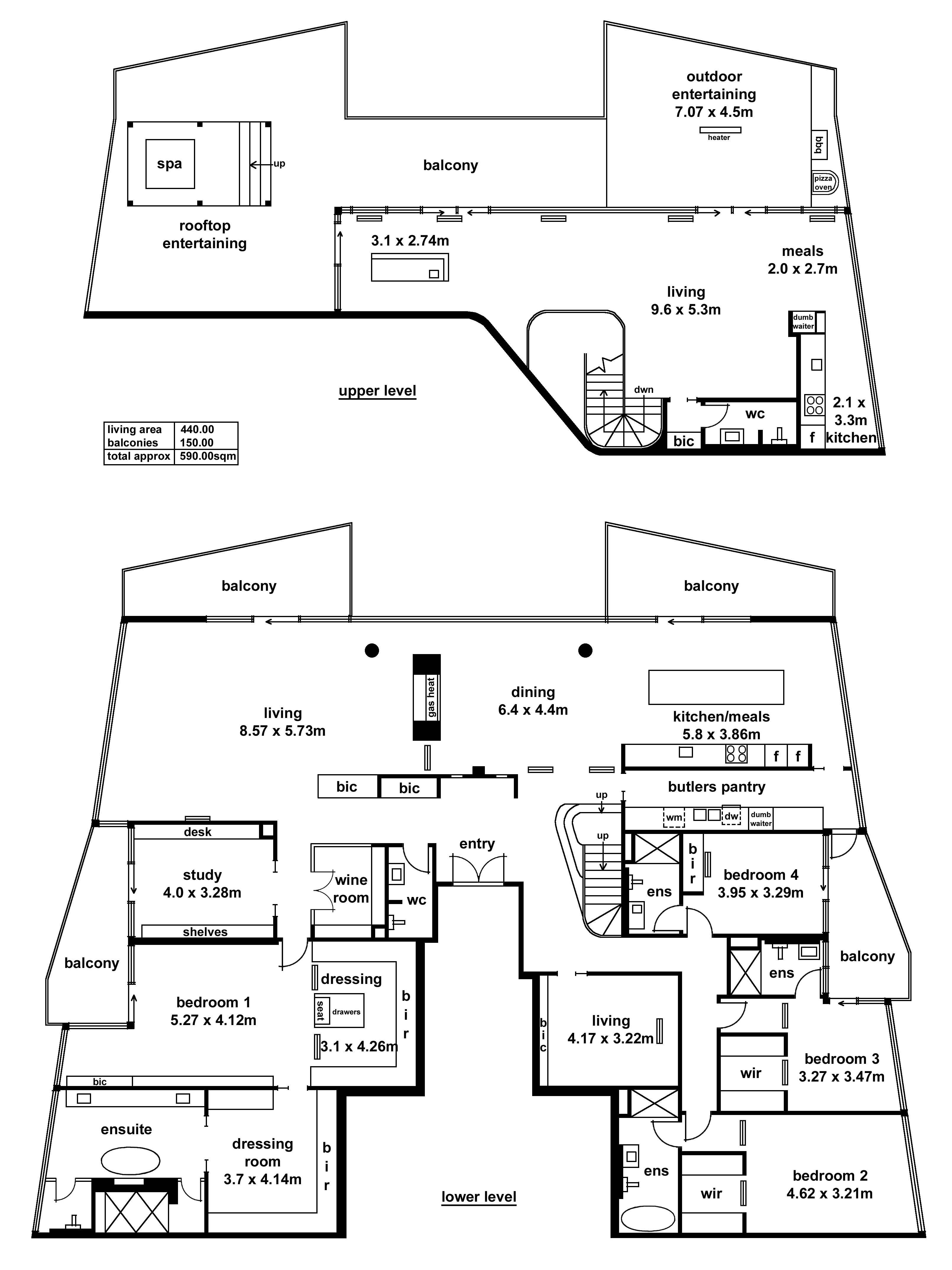
Designed to capture the very essence of life at the top and spanning over 2 incredible levels this brand-new penthouse makes a statement. Enjoy in excess of 500 square metres of modern elegance and exclusive living in the heart of Adelaide - Australias most liveable city.
Realm is a beacon of modern elegance, an architectural vision created by Elenberg Fraser. Here is a rare opportunity to secure this exclusive sky home and experience the true meaning of superior luxury apartment living.
Imagine what it would be like to own a penthouse –
• Proudly positioned at the top of Adelaides tallest apartment building
• Spectacular breathtaking views in every direction
• Superbly and thoughtfully appointed – extensive built-in cabinetry, fixtures and fittings throughout
• Sweeping formal and informal living and dining areas
• A stunning kitchen outfitted to the highest standard with butlers pantry and dumb waiter to upstairs kitchen
• Generous bedroom accommodation and ensuites
• The master bedroom suite is a triumph with double dressing rooms, en-suite with freestanding bath and private balcony
• An expansive library study room and wine room
• Basement parking for 3 vehicles
Then upstairs a dream for entertainers –
• Vast living room where giant glass sliders open onto a huge balcony, inviting all to enjoy the panorama and city skyline
• Outdoor built-in BBQ, wood fire pizza oven and bar
• Step up to private rooftop hot-tub spa
• A fully equipped kitchen and bathroom
In addition, yours to enjoy are the extensive premium apartment amenities –
• A wellbeing zone for indoor yoga studio/retreat
• 270sqm rooftop spa, sauna and steam room
• Cross-fit enabled gym and climbing wall
• Two private function spaces and a games room
• 25 metre-long lap pool and spa.
Never before has there been anything quite like this on offer in Adelaide – your opportunity to live the dream is now.
All information provided (including but not limited to the propertys land size, floor plan and floor size, building age and general property description) has been obtained from sources deemed reliable, however, we cannot guarantee the information is accurate and we accept no liability for any errors or oversights. Interested parties should make their own enquiries and obtain their own legal advice.
If you have any enquiries please contact Fox Real Estate direct on Display phone number



























