For more details and viewing please call Fox Real Estate on Display phone number
Nestled behind a traditional picket fence and surrounded by beautifully maintained gardens, this wonderful character home is set on a very generous 822sqm (approx.) allotment and is sure to impress the most fastidious buyer.
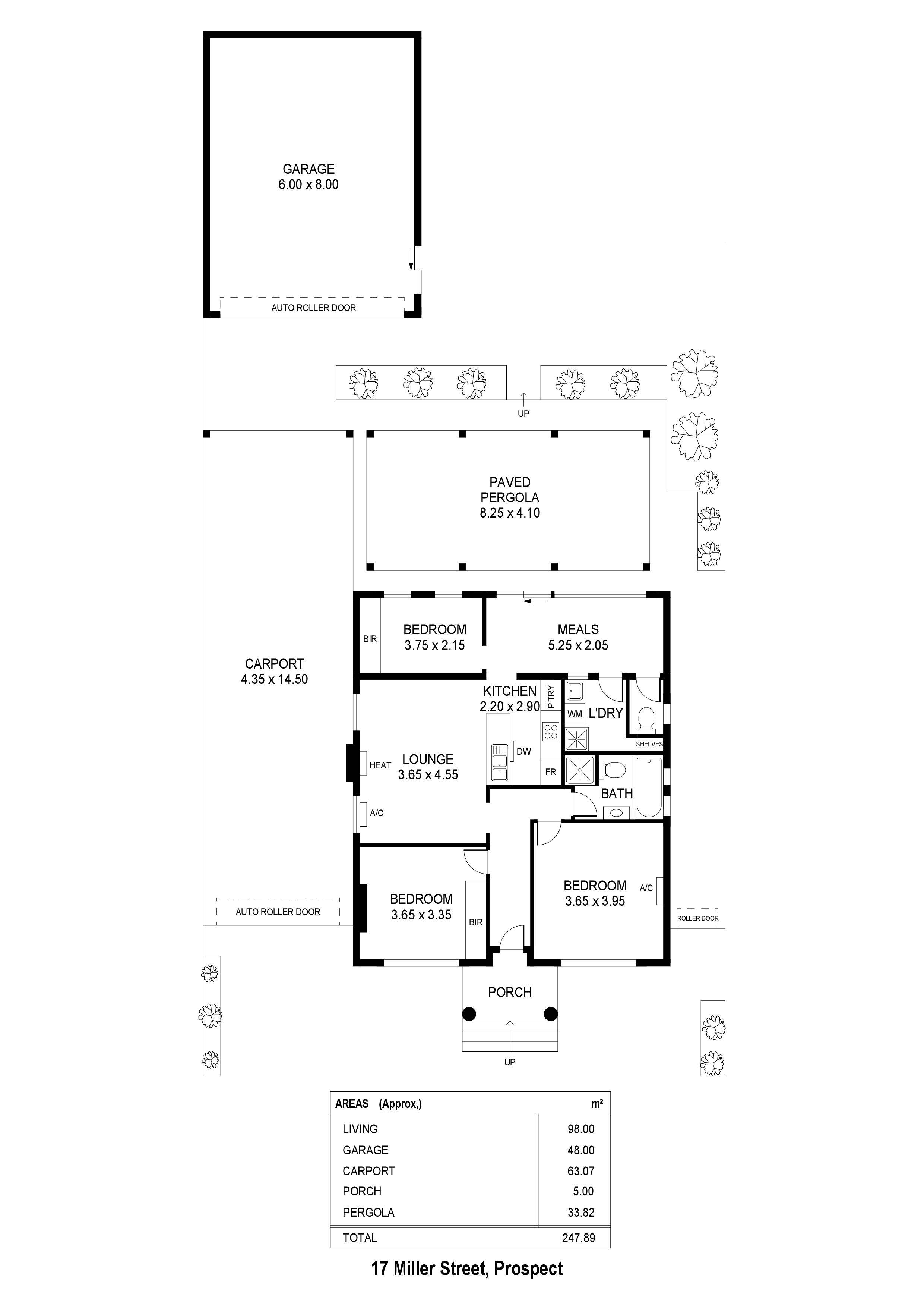
Light and bright with high ceilings and warm polished timber floors, offering 3 bedrooms (or 2 plus study) and a stylish open plan living area. The chic kitchen is fully equipped with modern appliances and great storage options. The separate dining overlooks an AMAZING alfresco area – perfect for entertaining friends and family year-round.
The extensively landscaped backyard has plenty of space for everyone to enjoy; extensively paved with a generous lawn area, a large shed 8m x 6m and 3 large rain water tanks plumbed to the house. An auto roller door to the driveway provides access to ample car accommodation plus room for a boat or caravan.
A short stroll will have you on cosmopolitan Prospect Road to enjoy cafes, restaurants, entertainment and retail conveniences. Public transport options are close by and easy access to the City and Churchill Centre. Positioned close to some of Adelaides sought after private and public schools (currently within the catchment zone of popular Adelaide High and Adelaide Botanic High Schools).
Special features we know youll enjoy:
• Solar electrical system
• NBN connected
• Security system
• 2 x Split system air conditioners and gas heating
• Dishwasher
• 2 toilets and 2 showers
All information provided (including but not limited to the propertys land size, floor plan and floor size, building age and general property description) has been obtained from sources deemed reliable, however, we cannot guarantee the information is accurate and we accept no liability for any errors or oversights. Interested parties should make their own enquiries and obtain their own legal advice. Should this property be scheduled for auction, the Vendors Statement can be inspected at our office for 3 consecutive business days prior to the auction and at the auction for 30 minutes before it starts.
If you have any enquiries please contact Fox Real Estate direct on Display phone number



















