For more details and viewing please call Fox Real Estate on Display phone number
Auction cancelled - property now under contract
Invest in one of Adelaides finest suburbs and secure your familys future - move in and enjoy while considering this incredible opportunity to renovate and extend to create your own dream home (subject to necessary consents).
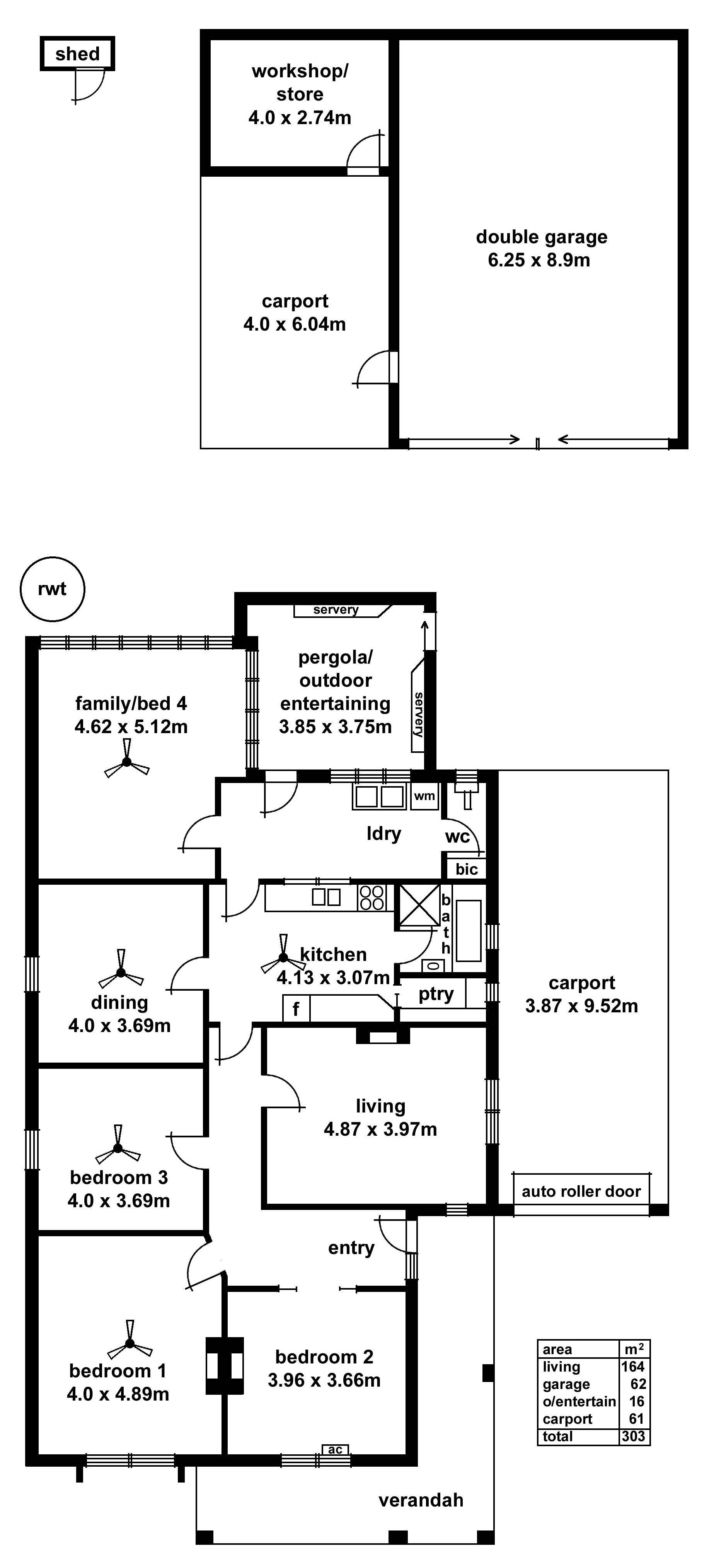
This 1928 Bungalow features high ornate ceilings and a flexible floor plan to adapt to needs – 3 or 4 bedrooms, a formal living and separate dining room adjacent central kitchen, plus generous family room and rear sunroom.
Easily maintained gardens both front and rear garden provide plenty of space for the kids to enjoy - there is also a large garage, additional carport and workshop storage.
Situated in a leafy street and located within moments to the Parklands, North Adelaide and the CBD. Within easy access to some of Adelaides premiere private and public schools and currently zoned for Walkerville Primary School, North Adelaide Primary School, Adelaide High School and Adelaide Botanic High School. Offering so many cosmopolitan advantages heres an incredible opportunity in this prestige location.
All information provided (including but not limited to the propertys land size, floor plan and floor size, building age and general property description) has been obtained from sources deemed reliable, however, we cannot guarantee the information is accurate and we accept no liability for any errors or oversights. Interested parties should make their own enquiries and obtain their own legal advice. Should this property be scheduled for auction, the Vendors Statement can be inspected at our office for 3 consecutive business days prior to the auction and at the auction for 30 minutes before it starts.
If you have any enquiries please contact Fox Real Estate direct on Display phone number


















