For more details and viewing please call Fox Real Estate on Display phone number
Perfectly located close to all the vibrant attractions of popular Prospect and featuring modern upgrades and spacious living – this is a place where you will feel at home in an instant!
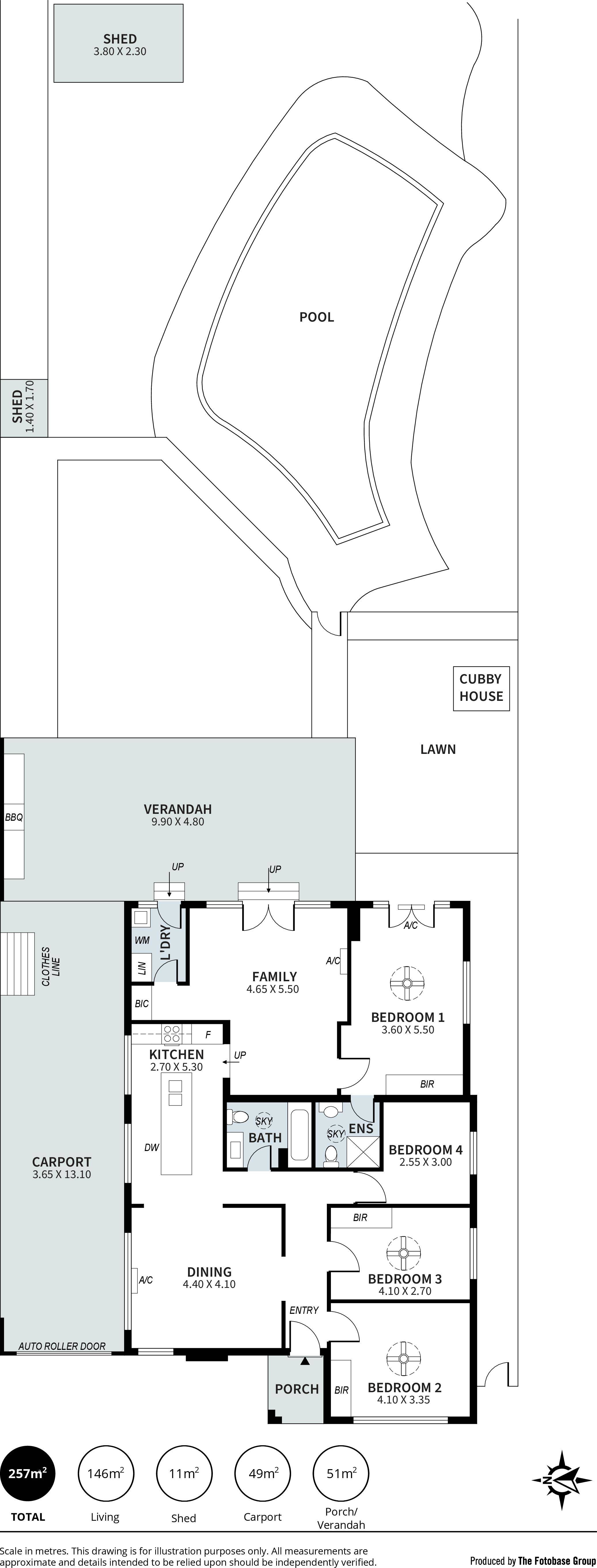
Featuring a flexible floor plan with family living in mind, highlighted by lofty ornate ceilings and original polished floors. Separate living and dining adjacent a sleek and modern kitchen including central island bench, dishwasher and abundant storage space. There are 4 good-size bedrooms (3 with built-in robes) the generous master is a parents retreat -with stylish ensuite bathroom and double doors opening out to enjoy rear garden views.
The family room opens out onto an extensive patio pergola that provides the perfect backdrop for outdoor family fun and keeping a watchful eye over children enjoying the in-ground pool surrounded by extensive lawn, mature garden beds and fruit trees.
Simply move in and enjoy this private and secure family home thats positioned in this ever popular and convenient locale. Theres easy access to Prospect Road, Churchill Centre, some of Adelaides finest schools (currently zoned for Adelaide High and Adelaide Botanic High Schools), and situated only moments to North Adelaide, the City and public transport options close by.
Features of this home we know youll enjoy :
- Large allotment 822 square metres (approx.)
- 3.5kw solar panels and inverter
- Salt-water in-ground pool
- Extensive secure parking behind auto roller door
- Split system air conditioning and ceiling fans
- Japanese pleat door screens in family room and main bedroom
- Large garden shed
If you have any enquiries please contact Fox Real Estate direct on Display phone number























