For more details and viewing please call Fox Real Estate on Display phone number
Best offers by Tuesday the 10th of October @ 5pm Unless Sold Prior
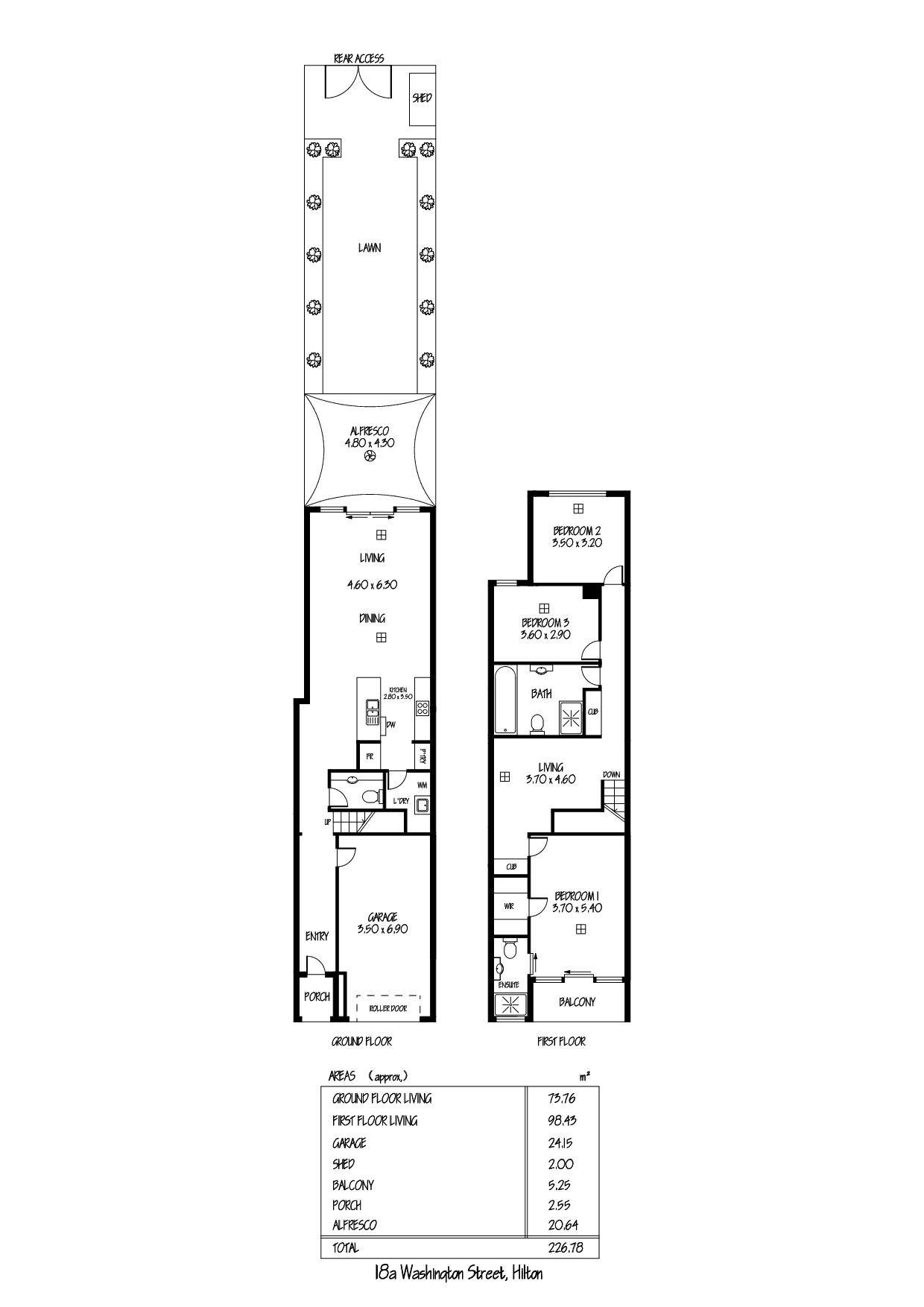
You will be instantly surprised by both the internal and external living space of this Torrens title property in the buzzing inner Western suburb of Hilton.
Comprising of large open plan living with modern kitchen that comprises of gas cooktop, electric oven, glass splashback and quality cabinetry.
Large covered and paved entertaining space that is ideal for year round entertaining with sunblock blinds and a landscaped yard with rear lane access.
Upstairs a second living space and three generous double bedrooms, the main is oversized and has en-suite, walk-in robe and its own private balcony that captures the city skyline and Adelaide foothills.
Bedrooms two and three are serviced by a large bathroom with single vanity, shower and freestanding bath.
A perfect lock up leave residence that will suit professional couples, small families and investors looking to secure an easy living property in the inner West.
Further reasons we love this home:
• Ducted AC throughout
• Lock-up single garage with plenty of storage room
• Space to park a second vehicle off street
• Close to public transport & shops
• Extra storage under stairs
• Third WC downstairs & separate laundry
Council rates: $1,373.55 pa
Water rates: $204.01 pq
ES Levy: $302.05 pa
Year Built: 2011
If you have any enquiries please contact Fox Real Estate direct on Display phone number



