For more details and viewing please call Fox Real Estate on Display phone number
Located at the front of this well maintained group and facing Augusta Street, is this private, secure and low maintenance home that is tucked away off Magill Road, moments from Norwood Parade and easy access into the CBD.
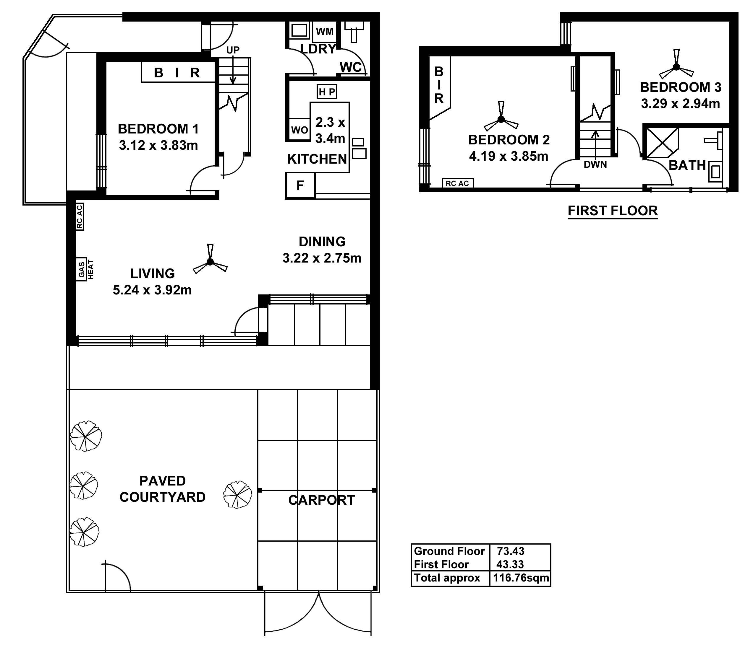
Comprising of:
*Three generous bedrooms (two with built-in robes)
*Open plan living and dining with raked ceilings
*Paved front eastern facing front yard
*Updated kitchen with gas stove and dishwasher
*Brand new bathroom with frameless shower
*Split system air-conditioning (one downstairs and one upstairs)
*Gas heater in main living room
*Slate floors in living, kitchen and dining rooms
*Carpeted bedrooms
Council rates: $ 1,019.36 pa
Water rates: $172.65 pq
ES Levy: $255.40 pa
Strata rates: $462.40 pq
Year Built: 1983
All information provided (including but not limited to the propertys land size, floor plan and floor size, building age and general property description) has been obtained from sources deemed reliable, however, we cannot guarantee the information is accurate and we accept no liability for any errors or oversights. Interested parties should make their own enquiries and obtain their own legal advice. Should this property be scheduled for auction, the Vendors Statement can be inspected at our office for 3 consecutive business days prior to the auction and at the auction for 30 minutes before it starts.
If you have any enquiries please contact Fox Real Estate direct on Display phone number


