For more details and viewing please call Fox Real Estate on Display phone number
Totally transformed beyond its classic Villa façade and nestled within leafy gardens this spacious home offers a wonderful lifestyle with the delights of Prospect Road and North Adelaide Village only a short stroll away.
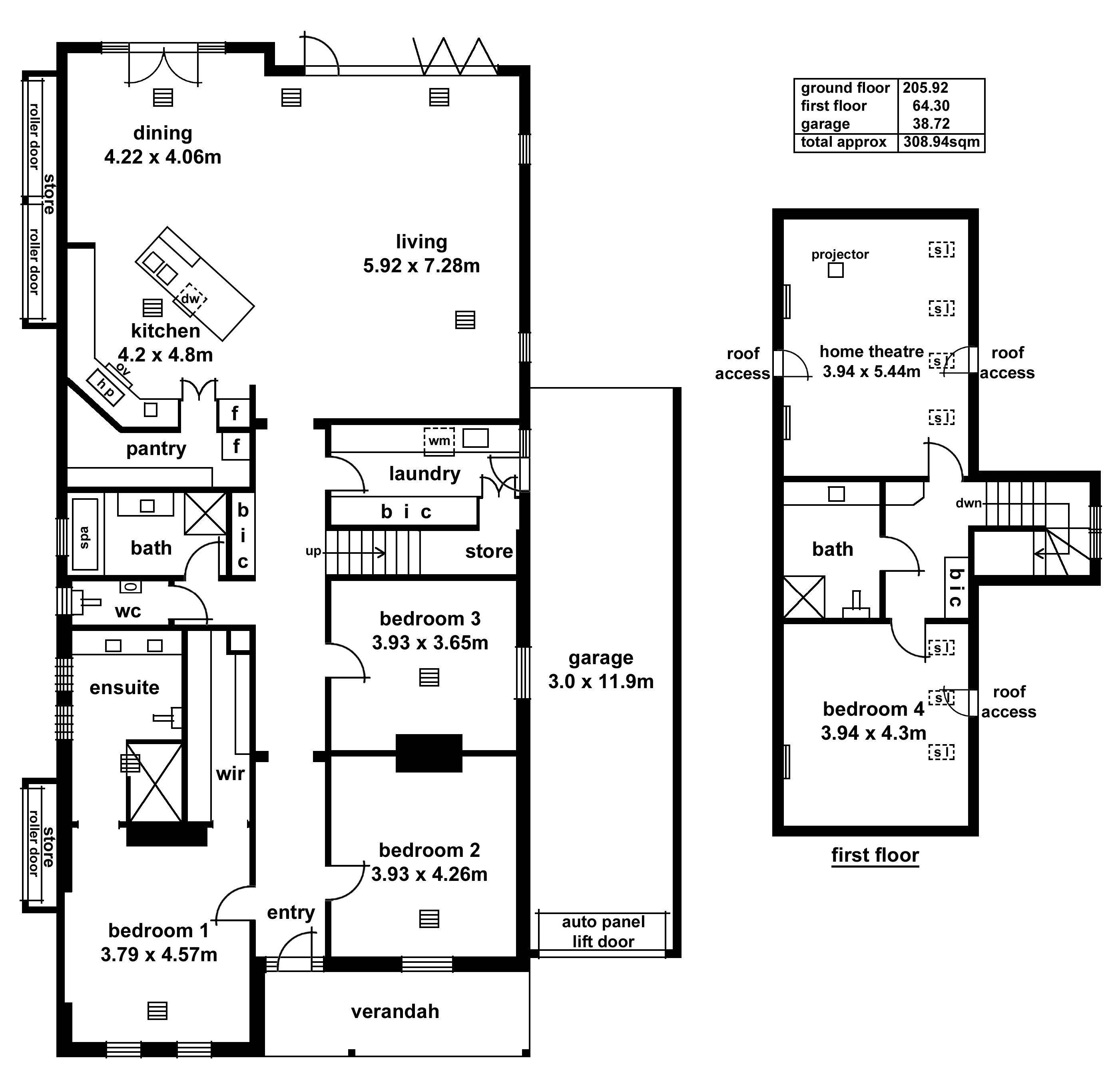
Featuring sweeping high ceilings and the warmth of polished timber floors, the flexible layout is staged over 2 levels. Downstairs enjoy the luxurious master bedroom retreat thats dedicated to privacy and relaxation - with a superb walk-in robe and sumptuous ensuite bathroom. A further 2 generous size bedrooms and sparkling central bathroom are also on this level.
Light filled and north facing, the open living / dining room is adjacent to a fully optioned gourmet kitchen. Designed to please the inner master chef, with Caesarstone benchtops and 2-pac cupboards plus stainless-steel appliances and a large pantry ensuring everyday essentials can be stored within easy reach.
Timber doors open to create an incredible entertainers dream, step seamlessly out into a totally private courtyard garden providing the perfect backdrop to enjoy lifes milestones with family and friends.
Upstairs enjoy a further 2 bedrooms, or consider alternative uses such as a home theatre, gym room, office, or retreat.
Such a wonderful opportunity to secure a fully renovated character residence situated in this increasingly popular location. Located only moments from the heart of Prospect Roads eateries and entertainment precinct and within easy access to North Adelaide and the CBD.
All information provided (including but not limited to the propertys land size, floor plan and floor size, building age and general property description) has been obtained from sources deemed reliable, however, we cannot guarantee the information is accurate and we accept no liability for any errors or oversights. Interested parties should make their own enquiries and obtain their own legal advice. Should this property be scheduled for auction, the Vendors Statement can be inspected at our office for 3 consecutive business days prior to the auction and at the auction for 30 minutes before it starts.
If you have any enquiries please contact Fox Real Estate direct on Display phone number



























