For more details and viewing please call Fox Real Estate on Display phone number
Expressions of Interest By | Tuesday 6th May at 11am (Unless sold prior)
Dont miss this prime chance to restore, develop, or create something special! Nestled in a quiet court overlooking the tranquil Raymel Reserve, this expansive 1979m² allotment spans three titles, offering endless possibilities.
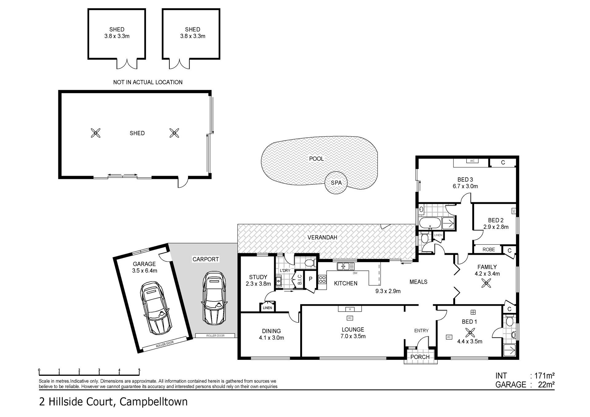
The principal 3-4 bedroom residence features ensuite, double garaging and requires only minor repairs to be move-in ready for a large family. The grounds include a full-size grass tennis court, multiple separate garages, and plenty of entertaining or car storage space. A standout feature-the tennis court has its street frontage, enhancing the propertys appeal and redevelopment potential.
With dual street frontages- 45.21m to Hillside Ct and 22.8m to Raymel Crescent-this is a golden opportunity for subdivision, restoration, or redevelopment. Just 9km from the Adelaide CBD, enjoy easy access to key transport routes, significant local shopping hubs, and essential infrastructure in the sought-after Campbelltown area.
The vendor is open to selling blocks individually. Contact us today to schedule a viewing and explore the potential of this extraordinary property!
Council Rates | $4,063.15 pa
SA Water | $331.29 pq
ESL | $285.30 pa
Year Built | 1960
Are you thinking of purchasing this property as an investment? Speak with our Property Management team on how we can assist you.
All information provided (including but not limited to the propertys land size, floor plan and floor size, building age and general property description) has been obtained from sources deemed reliable, however, we cannot guarantee the information is accurate and we accept no liability for any errors or oversights. Interested parties should make their own enquiries and obtain their own legal advice. Should this property be scheduled for auction, the Vendors Statement can be inspected at our office for 3 consecutive business days prior to the auction and at the auction for 30 minutes before it starts.
If you have any enquiries please contact Fox Real Estate direct on Display phone number


