For more details and viewing please call Fox Real Estate on Display phone number
Calling all renovators, investors or first home buyers! With such a fantastic position in this popular cosmopolitan pocket - what an opportunity to make your mark in Prospect!
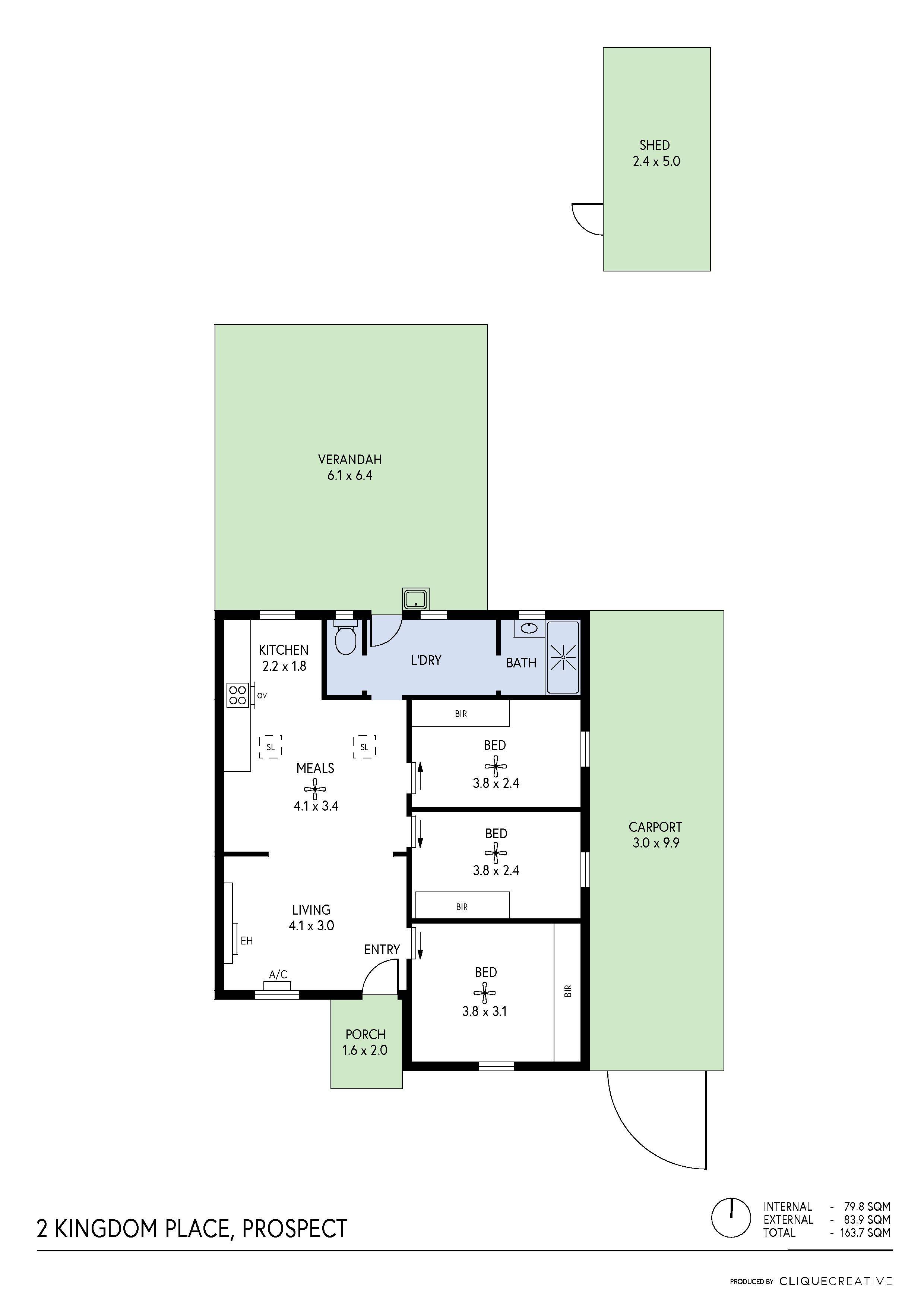
Comprising a 1950s Torrens Title maisonette offering 3 bedrooms, open plan living/dining, kitchen, bathroom, laundry, carport, rear back verandah and large garden shed all set on a substantial allotment with plenty of room to recreate or rejuvenate (subject to planning consents).
Opportunities like this are far and few between, be sure not to miss this one. Located an easy walk to every amenity - eateries, cafes, public transport, Prospect Road and Churchill Centre are all nearby.
Buyers please note: The Prospect Council has indicated that this property may be demolished, subject to submission of required structural building reports by the applicant.
Council Rates | $1,572.75 pa
SA Water | $102.85 pq
ESL | $151.30 pa
Year Built | 1950
Land | 580sqm (approx.)
Frontage | 12.19m (approx).
Are you thinking of purchasing this property as an investment? Speak with our Property Management team about how we can assist you!
All information provided (including but not limited to the propertys land size, floor plan and floor size, building age and general property description) has been obtained from sources deemed reliable, however, we cannot guarantee the information is accurate and we accept no liability for any errors or oversights. Interested parties should make their own enquiries and obtain their own legal advice. Should this property be scheduled for auction, the Vendors Statement can be inspected at our office for 3 consecutive business days prior to the auction and at the auction for 30 minutes before it starts.
If you have any enquiries please contact Fox Real Estate direct on Display phone number



