For more details and viewing please call GSRE.COM.AU on Display phone number
Built in 1891 the Monastery was a standout during Ballarats victorian era. This stunning apartment is situated in the north wing of the Monastery and captures brilliant sunlight from its abundance of north facing windows. The amazing views to the north face towards mount rowan and mount ercildoune. The views to the south and east from the apartment overlooks the colourful landscaped Monastery gardens. This is a gated community supplying secure undercover parking and visitors parking
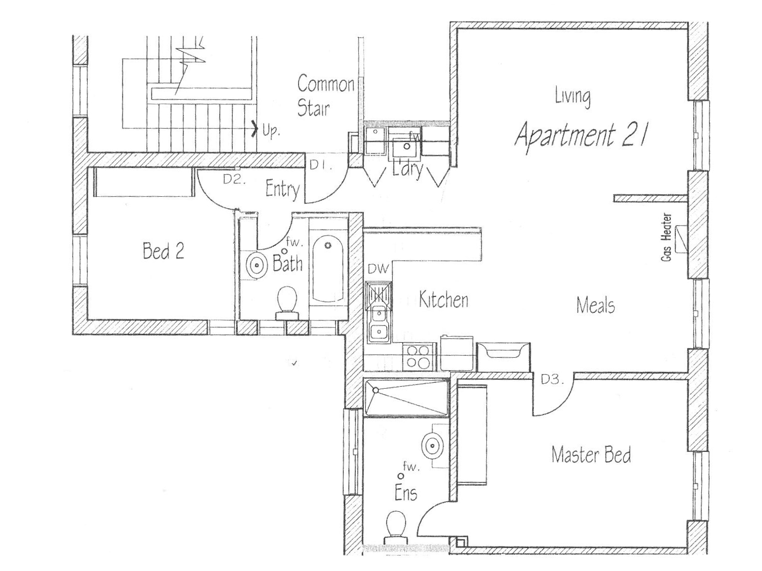
The apartment with its high 10ft ceilings has been fully renovated to as new condition, with 2 bedrooms large master with ensuite, spacious open plan living, kitchen with new dishwasher, gas cooktop, rangehood and bosch electric oven, new window furnishings and quality new carpet has been installed throughout. The bathroom with bath is adjacent to the second bedroom.
The location of the apartment is just 200mtrs from train station and Stocklands shopping centre, Ballarat Grammar school, Howitt street shopping and medical precinct are all just 600mtrs , bus stop at door, short stroll to Lake Wendouree, botanical gardens, YMCA swimming pool and wetlands area. This amazing apartment with old world charm must be seen to be believed inspection is a must be quick to inspect this property.
If you have any enquiries please contact GSRE.COM.AU direct on Display phone number
