For more details and viewing please call Fox Real Estate on Display phone number
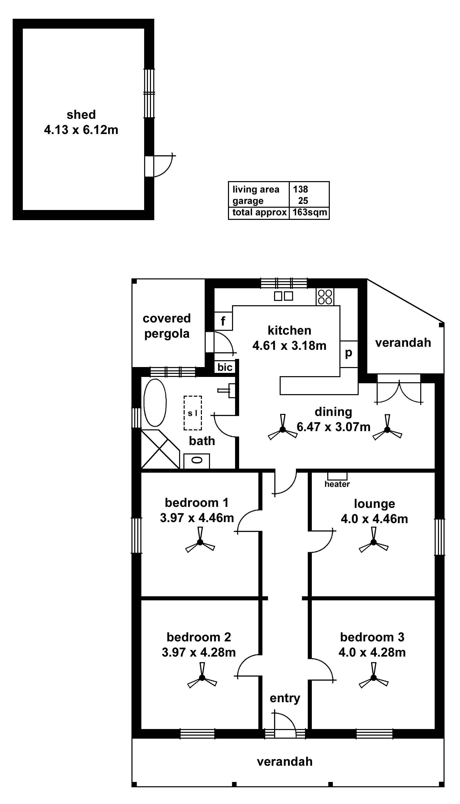
Basic amenities are all here.. but this character home is in need of refurbishment. Theres incredible potential to rejuvenate to its former glory retaining the original charming features or consider starting from scratch and build your dream home (subject to consents).
Positioned in undoubtedly a great location (blue-chip Prospect) walk to North Adelaide, Adelaide Oval or the City. Enjoy everything vibrant Prospect Road has to offer with eateries, entertainment and retail shopping only steps away.
Dont miss this chance – your future awaits.
All information provided (including but not limited to the propertys land size, floor plan and floor size, building age and general property description) has been obtained from sources deemed reliable, however, we cannot guarantee the information is accurate and we accept no liability for any errors or oversights. Interested parties should make their own enquiries and obtain their own legal advice. Should this property be scheduled for auction, the Vendors Statement can be inspected at our office for 3 consecutive business days prior to the auction and at the auction for 30 minutes before it starts.
If you have any enquiries please contact Fox Real Estate direct on Display phone number














