For more details and viewing please call Richardson & Wrench Wilston - Windsor on Display phone number
Queenslands Property market is on fire! Now is the the time to invest in our state and what better way than to secure an investment with Government guaranteed rent. North Lakes is a rapidly growing area and investors will love the security of the long term lease in place with DHA (Defence Housing Australia). Currently leased until May 2023 with a further option of 3 years.
A DHA (Defence Housing Australia) lease offers the new owners guaranteed rental income, resulting in stress free investing, regardless of whether the home is tenanted. Ideal for investors from anywhere in the country, superannuation funds, and perfect for those starting their property portfolio and looking for a safe and secure option to get started. At the end of the lease the owner can move in, rent out or sell at their own leisure.
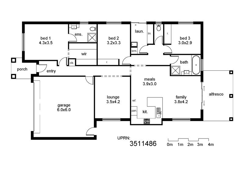
This 3 bedroom house features open plan kitchen/family/dining area opening to a covered rear patio. There is also a separate lounge room with air conditioning, which adds to the spacious living areas. The master bedroom is located at the front of the house and has a walk-in robe and ensuite. All other bedrooms have built-in wardrobes, ceiling fans and security screens. There is a generous sized, fully fenced back yard with low maintenance garden, water tank and low maintenance garden.
* Lease start date: 18/05/2011
* Lease end date: 17/05/2023
* Current Rental per week: $425.00
* Lease option: 3 years
**All options and variations are exercised at DHAs discretion.
Rent is reviewed in December every year by a registered valuer
DHA LEASE BENEFITS
* DHA guarantee to pay the rent even if the property is vacant.
* DHA Property Care, an all-inclusive service fee, covers a range of property related services.
* The property is cleaned at the end of each tenancy period.
* The lessor may also be entitled to a lease-end make-good (refer to the DHA Lease Agreement)
* A rental floor may apply to the DHA Lease Agreement (applicable to specific lease editions and
applies to commencement rent).
With huge growth predicted for this area, and new investment streaming in from both government and business, North Lakes is a community for today and tomorrow. Only 25 kilometres from Brisbane and handy to the Sunshine Coast, North Lakes is the pinnacle of contemporary convenience and family-friendly fun. With schools, sporting fields, a Westfield Shopping Centre, libraries, swimming pool, medical centres, bike paths, gyms, several major hardware stores, you get the sense that there are very few reasons why North Lakes residents would ever want to leave their suburb.
In accordance with DHA regulations, we advise that this property will be available for private inspection only and to pre-qualified buyers only. Photos are supplied under agreement by DHA and are for illustration purposes only.
For more information, please contact your DHA sales specialist - R&W Ascot.
If you have any enquiries please contact Richardson & Wrench Wilston - Windsor direct on Display phone number


