For more details and viewing please call Fox Real Estate on Display phone number
*UNDER INSTRUCTIONS FROM THE PUBLIC TRUSTEE*
Auction | Thursday 12th December at 12:30pm.
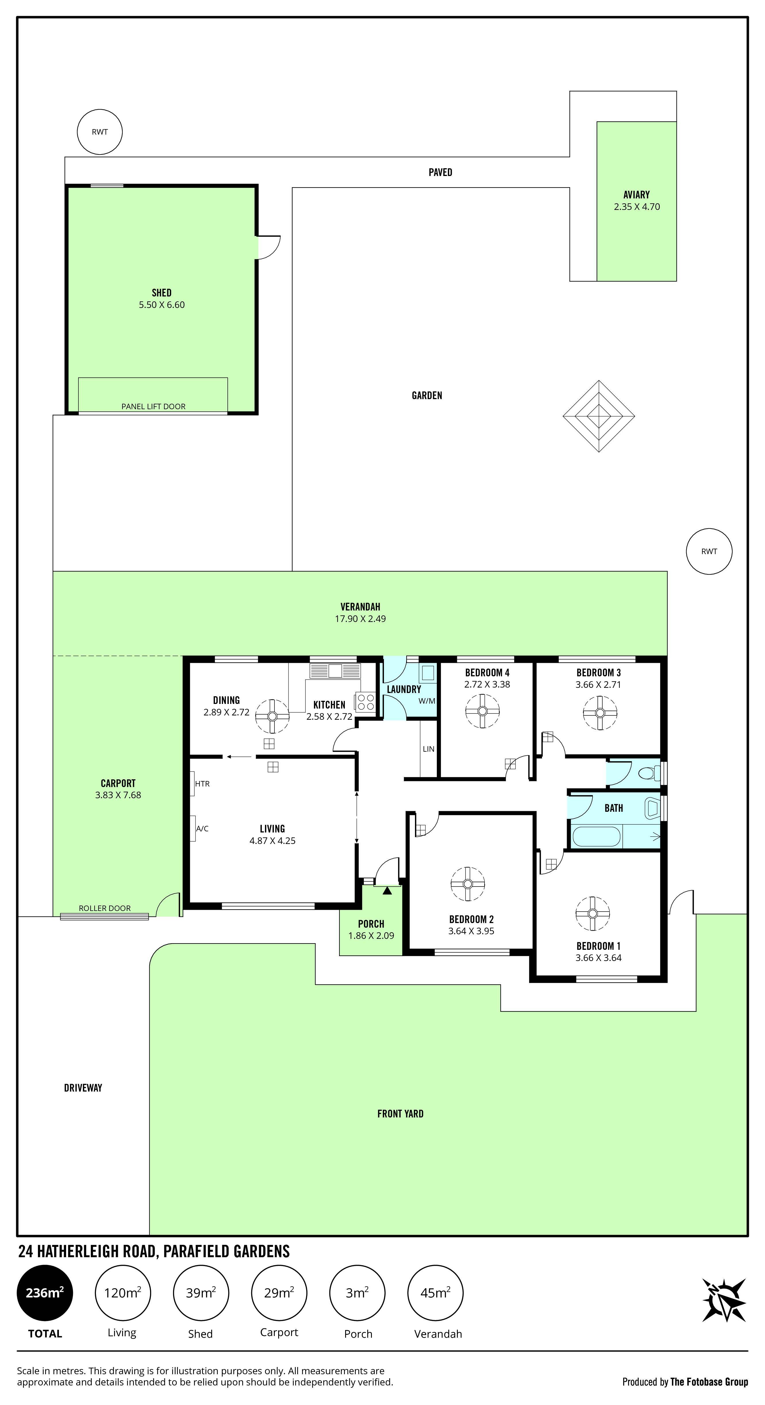
Introducing this solid brick, circa 1972, quality-built 4-bedroom home. Offering multiple opportunities to revive, reside, or possibly divide (subject to planning and necessary consents), this one is not to be missed.
Be impressed at first glance by its commanding 21.3m wide frontage and strong street presence. A smart floorplan welcomes you into a large family entertaining room, open-plan kitchen and dining area, 4 bedrooms, and a walk-through laundry inside.
The rear yard offers an undercover alfresco area, a massive shed, and additional undercover carports accessed through an electric roller door. All this is set on the perfect-sized family block, with established fruit trees, rainwater tank storage, and room for the whole family.
Further features of the property include:
Gas instantaneous hot water system.
Electric roller door with drive-through carport and garage, providing ample car accommodation and storage.
Ducted cooling throughout and gas heater to the main lounge room.
Nestled between beautifully maintained family homes, and so much more.
Location, Location!
Parafield Gardens Train Station is just a stones throw away, providing easy access to the city. Surrounded by convenient shopping precincts, including Parafield Plaza supermarket down the road, youre just moments away from the heart of the ever-popular and cosmopolitan Mawson Lakes. Local parks, playgrounds, and sporting ovals are all close by.
A truly exciting opportunity in an area that offers something for the whole family.
Council Rates | $TBA pa
SA Water | $165.55 pq
ESL | $117.30 pa
Year Built | 1972
Are you thinking of purchasing this property as an investment? Speak with our Property Management team on how we can assist you.
All information provided (including but not limited to the propertys land size, floor plan and floor size, building age and general property description) has been obtained from sources deemed reliable, however, we cannot guarantee the information is accurate and we accept no liability for any errors or oversights. Interested parties should make their own enquiries and obtain their own legal advice. Should this property be scheduled for auction, the Vendors Statement can be inspected at our office for 3 consecutive business days prior to the auction and at the auction for 30 minutes before it starts.
If you have any enquiries please contact Fox Real Estate direct on Display phone number


