For more details and viewing please call Fox Real Estate on Display phone number
Situated on one of Prospects most sought after tree lined streets, just moments from the CBD, North Adelaide and everything that Prospect Road has to offer is this fully rejuvenated character home – a rare find in this location by any measure.
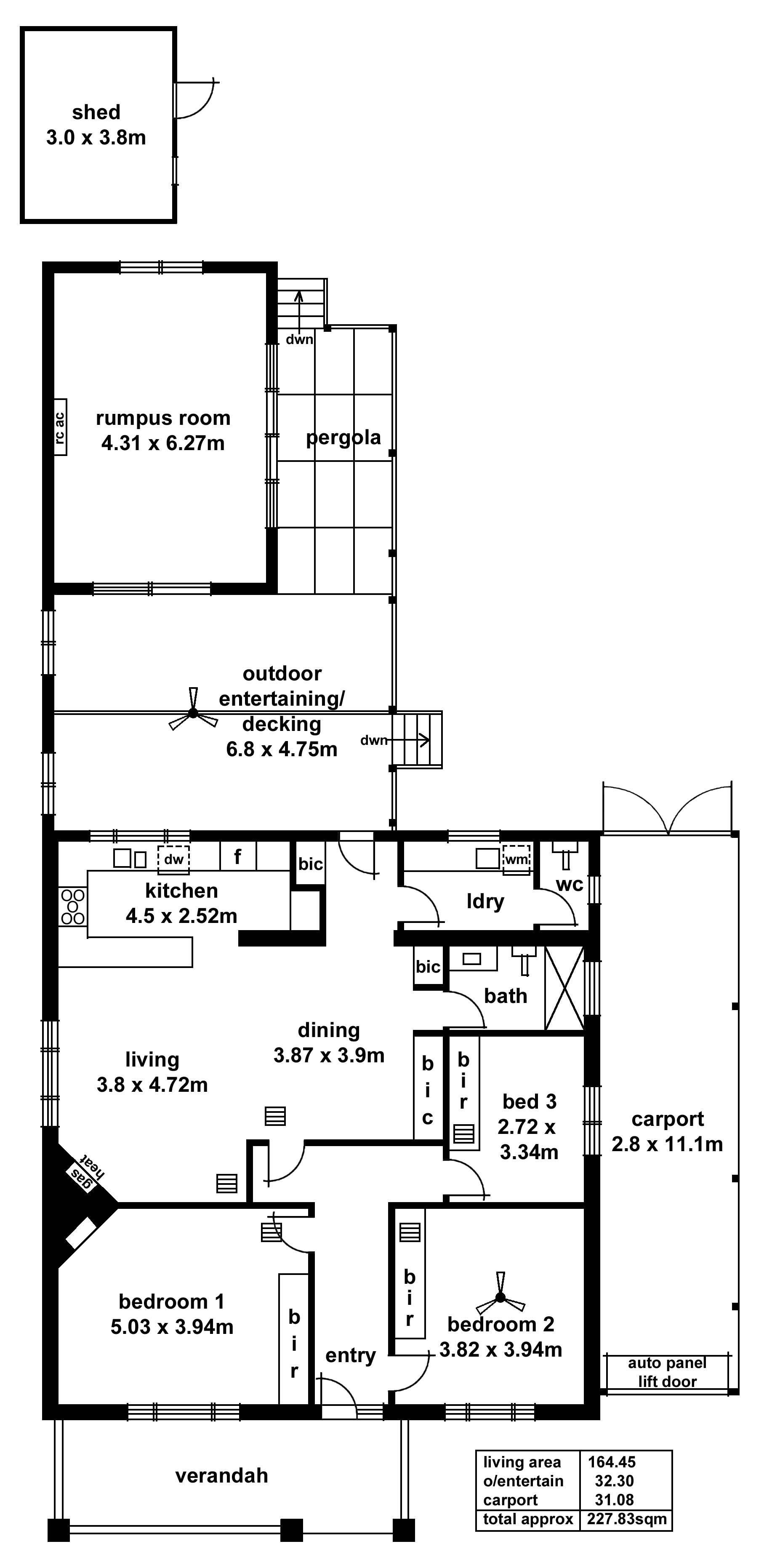
Stylishly renovated and extended with so much to offer, just move in and enjoy. Featuring 3 bedrooms all with quality built in robes, the generous main bedroom also features an open fireplace. The bright contemporary kitchen is well laid out to ensure everything is at your fingertips and features gloss white 2-pac cabinetry and Caesar-stone benchtops with abundant storage, all overlooking the family and dining areas.
Entertain family and friends in the all-weather patio with extensive timber decking that leads out to a separate rumpus room – a great place to relax and chill, an ideal games room or teenagers retreat.
Enjoy fully landscaped gardens both front and rear, with just the right amount of lush green lawns and virtually maintenance free mature garden beds.
With its most attractive upper Prospect location and close proximity to everything that matters – the appeal is clear. Some of Adelaides premier schools are within walking distance and public transport only steps away. Leave the car at home and enjoy a stroll to North Adelaide, nearby Adelaide Oval and Riverbank precinct.
Features :
• Character features, ornate ceilings and open fireplaces.
• Quality cabinetry, 2-pac robes and kitchen cupboards.
• Miele appliances in kitchen.
• Clay pavers and Blackbutt timber decking.
• Extensive storage – under deck and tool/garden shed.
• Established low maintenance gardens with auto watering system.
• Ducted evaporative air conditioning and gas log fireplace.
All information provided (including but not limited to the propertys land size, floor plan and floor size, building age and general property description) has been obtained from sources deemed reliable, however, we cannot guarantee the information is accurate and we accept no liability for any errors or oversights. Interested parties should make their own enquiries and obtain their own legal advice. Should this property be scheduled for auction, the Vendors Statement can be inspected at our office for 3 consecutive business days prior to the auction and at the auction for 30 minutes
If you have any enquiries please contact Fox Real Estate direct on Display phone number


























