For more details and viewing please call Raywhite Brisbane CBD on Display phone number
Here is your opportunity to secure a high floor luxury three bedroom apartment in the prestigious Admiralty Precinct. This apartment offers breathtaking panoramic views of the Brisbane River, City, Mt Cootha and beyond from the 28th floor and a lifestyle that is second to none. This highly appealing inner-city home truly is a must inspect. The motivated owner is ready to move on - make your offer today!
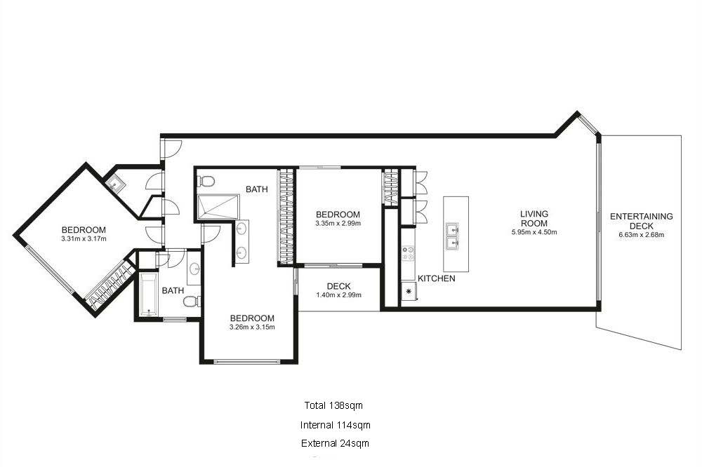
Property features:
- Three double bedrooms, two stylish bathrooms
- Master bedroom features large private ensuite and second balcony
- One secured car park plus a large secured storage cage (car park 29 and storage cage 12 on basement 1)
- Huge entertainers balcony provides breath-taking River and City views
- Open plan living and dining also captures the views
- Sleek gourmet kitchen
- Separate laundry room, ducted air conditioning
- Fully furnished to a high standard
- Approx. 138sqm (114sqm int; 24sqm ext) on the 29th floor
- Potential rental income of $850 per week, fully furnished
Skyline features resort style facilities including a full sized tennis court, swimming pool, spa, sauna, gym and BBQ area.
Ideally located next to the newly developed Howard Smith Wharf entertainment precinct featuring fine dining options, the popular Felons Brewery, bars and cafes along the Brisbane riverfront. Short stroll to the Queen Street Mall shopping district and the riverside dining precinct of Eagle St Pier and the entertainment hub of Fortitude Valley including Chinatown minutes away.
For further information regarding the Brisbane Inner City property market please go to raywhiteiba.com.au/news
Please advise the agent in writing before placing an offer if you require Foreign Investment Review Board approval (FIRB). Please visit - https://firb.gov.au/ for further details.
If you have any enquiries please contact Raywhite Brisbane CBD direct on Display phone number


















