For more details and viewing please call Philip Webb - Doncaster East on Display phone number
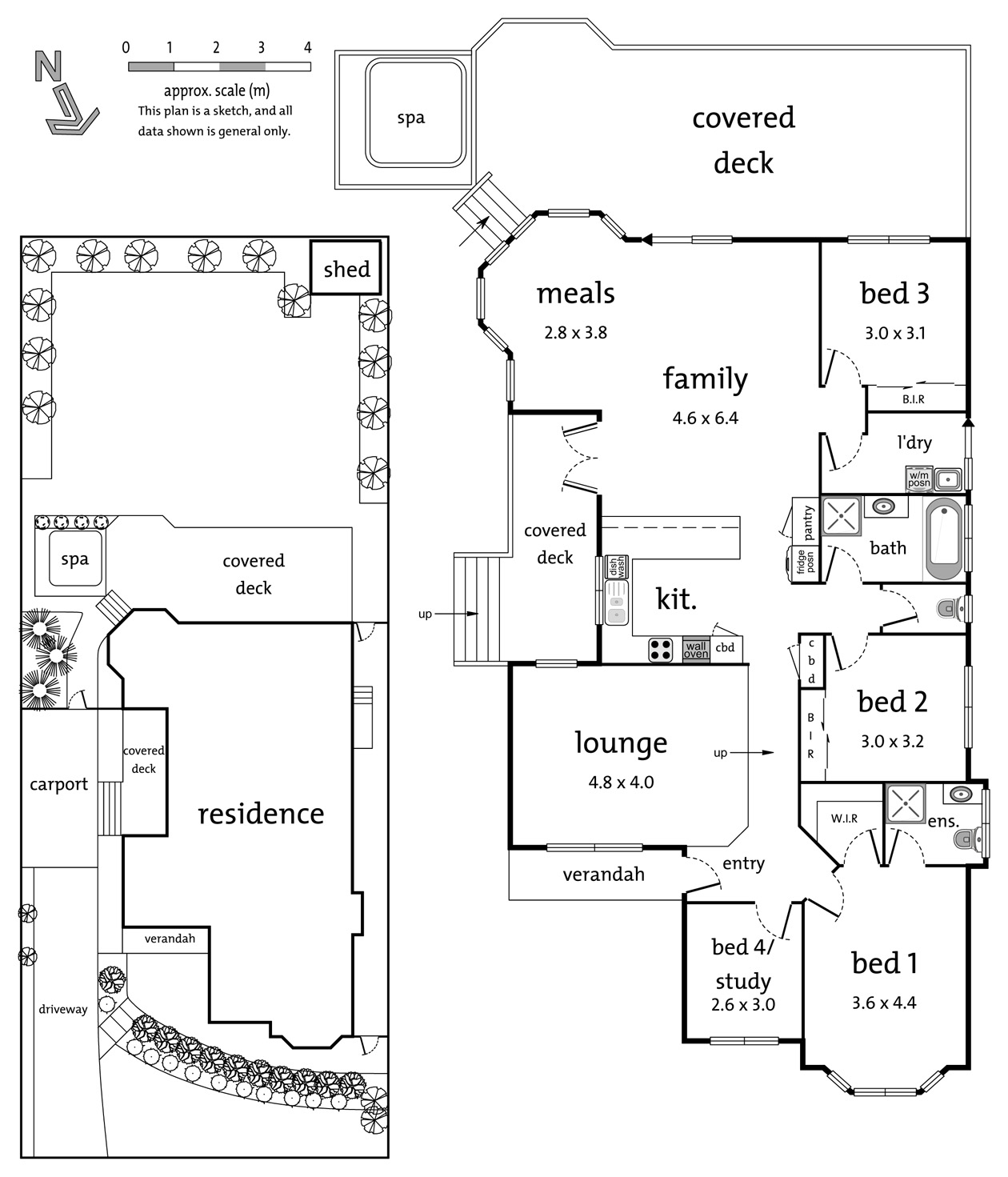
Multiple living zones, clever interior design and a fabulous location make this home an ideal option for growing families. Set over an immaculately maintained single level on 648sqm (approx.), youll be impressed by every inch.
Two large decked areas, one at the front of the house and one at the back, offer endless opportunities to enjoy peace, serenity and beautiful mountain views. The rear garden also features a spa and plenty of grassy space to bask in the sunshine.
The spacious interior showcases an open plan living area (adjoining the outdoor entertaining zone), a separate formal lounge, three bedrooms, two bathrooms plus a fourth bedroom/study option. The master bedroom is appealing finished with a bay window, ensuite and walk-in robe.
Further highlights include ducted heating, split system air conditioning, solar panels, a garden shed, carport plus additional off-street parking.
Located in a family-friendly no-through road with a park/playground nearby, the home is convenient to EastLink, Eastland, Maroondah Hospital, Tintern Grammar and Tinternvale Primary. This is an opportunity not to be missed!
If you have any enquiries please contact Philip Webb - Doncaster East direct on Display phone number


