For more details and viewing please call Malseed Real Estate on Display phone number
Jason Malseed from Malseeds Real Estate is pleased to present for sale 3 Alexander Street, Tarpeena. Located in the rural community of Tarpeena, this home is just 15 mins drive to Mount Gambier and 20 mins to the famous Coonawarra wine region.
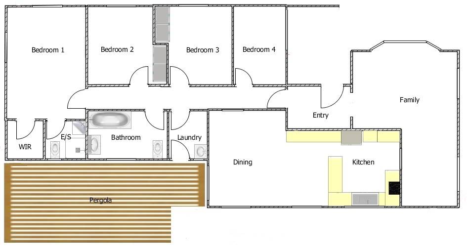
- An impressive family home with four good sized bedrooms
- Master bedroom with refurbished en-suite and walk in robe
- Bedrooms 2 & 3 with built-in wardrobes
- Fourth bedroom currently setup as a study
- The large kitchen offers plenty of bench and cupboard space. Includes wall oven, hotplates, microwave, dishwasher
- Family refurbished bathroom with shower over bath, toilet & vanity
- Reverse cycle air conditioner plus a slow combustion fan-forced heater
- Large enclosed rear yard with well maintained, mature gardens
- Abundant space to take in the serenity on the rear pergola
- 6m x 6m garage with light, power & built-in work benches
- Double carport
- Front and rear lawn popup sprinklers fed by bore pump + two rain water tanks
- 20 panel solar system (5.4 kW) with an inbuilt booster for hot water system
- 8 external security cameras for peace of mind
- Large 1728m2 (approx) block with ride-on mower included in sale to help keep it looking its best
- Secure back yard includes garden shed, wood shed, mature citrus trees, seedless grape vines and vege garden
- Side access on both sides of property for caravan/boat etc access.
For more information contact Jason Malseed 0419 032 795
If you have any enquiries please contact Malseed Real Estate direct on Display phone number


