For more details and viewing please call Fox Real Estate on Display phone number
A beautiful tree-lined street, an amazing location and exceptional land size with a street frontage of 21m – highly sought after, rarely offered and sure to tick all the boxes!
Consider this the perfect opportunity either renovate the existing home or start afresh with a new build (subject to necessary consents), both equally astute opportunities in this premiere inner suburban location.
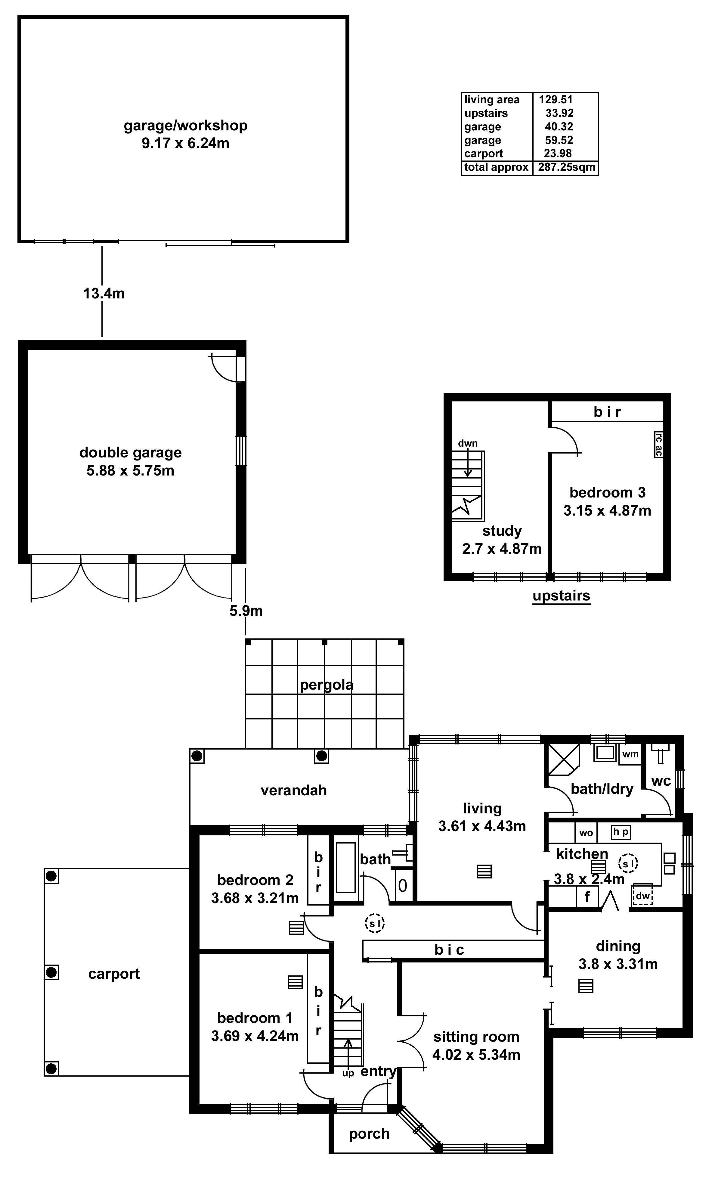
Currently the circa 1956 home features a flexible floor plan set over 2 levels, with informal and formal living areas, three bedrooms (2 with built in robes) and 2 bathrooms. Step out onto the all-important north facing rear aspect to enjoy vine covered pergola, double garage and large workshop.
The lifestyle offered by living in this fantastic location is yours to enjoy and whatever you decide here is an ideal opportunity to create your dream home. Just strolling distance away from North Adelaide Village, moments to the buzz of cosmopolitan Prospect Road and within easy access to elite Adelaide private and public schools.
All information provided (including but not limited to the propertys land size, floor plan and floor size, building age and general property description) has been obtained from sources deemed reliable, however, we cannot guarantee the information is accurate and we accept no liability for any errors or oversights. Interested parties should make their own enquiries and obtain their own legal advice. Should this property be scheduled for auction, the Vendors Statement can be inspected at our office for 3 consecutive business days prior to the auction and at the auction for 30 minutes before it starts.
If you have any enquiries please contact Fox Real Estate direct on Display phone number



















