For more details and viewing please call RE/MAX - Stephen Pahl Properties on Display phone number
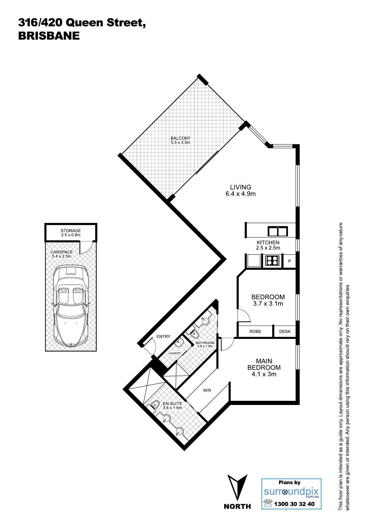
This large 107sqm two bedroom, two bathroom apartment sets a high standard of apartment living and is in a league of its own, located in a highly sought after corner location of the Aurora Tower building.
Spacious, with a well thought out floor plan this apartment would suit an investor with an acute sense of opportunity, or an owner occupier wishing to experience a piece of Brisbanes urban living at its very best.
Currently rented on a long term lease at $580 per week.
The floorplan encompasses two spacious bedrooms, one with a convenient study and one with a contemporary styled ensuite as well as a sizeable walk-through-wardrobe.
This freshly painted apartment brings three living spaces together; the kitchen offers you ample space for cooking, cleaning and entertaining with the island bench top which flows through to the living and dining area.
From here, you have a larger than normal south-east facing balcony with some river and expansive views overlooking the skyline of the CBD.
If the looks and location of this apartment werent enough, thrown into the sale will be a near new Sony Bravia Entertainment System & TV (55 Inch), Fisher & Paykel Refrigerator with water & ice dispensers, LG Front Load Washing Machine as well as a Fisher & Paykel Dryer at an approximate cost of $5,000.
The Aurora Tower, a landmark high quality residential complex is located in a highly sought after location with just a few minutes to various cafes, restaurants, clubs, bars and bus, train or ferry transportation all within walking distance.
With pure convenience in mind, you also have a liquor store and 7/11 store at the base of this 69 storey building.
Property Features Include:
- 2 Bedroom, 2 Bathrooms, 1 Secure Car Space & Large Storage Cage
- 107sqm Internal + External
- No short term letting - Long term lease in place $580 per week
- Mood Lighting throughout
- Various Included Appliances
- Fully Ducted air conditioning
- Custom Black-Out Curtains throughout
- Highly Sought After High Level Corner Location in the building
Access to premium building facilities including:
- Lap Pool & Spa
- Gym & BBQ facilities
- Sauna & Change Rooms
- Cinema & Lounge
- Workshop & Cool-room
- 24 hour reception & management
- Keyless secure entry throughout
- Intercom security
For further information please contact Stephen Pahl on 0404 266 085 or email at stephen@stephenpahl.com.au
If you have any enquiries please contact RE/MAX - Stephen Pahl Properties direct on Display phone number

