For more details and viewing please call Fox Real Estate on Display phone number
Situated in this prestigious pocket and securely nestled within private established gardens and pool surrounds, this captivating residence delivers an impressive blend of period elegance and contemporary style - providing outstanding family living and flexibility.
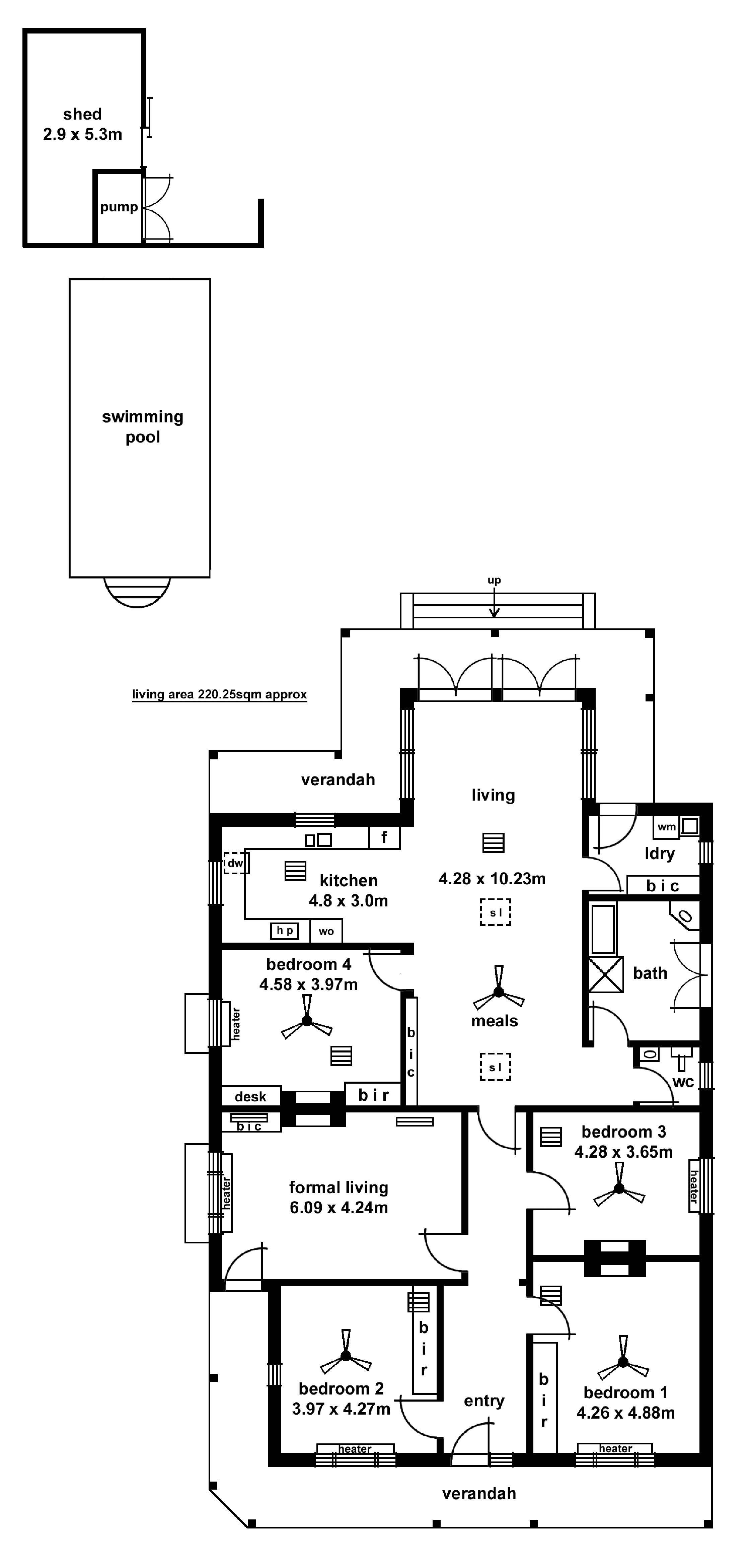
Beautifully presented throughout, high ceilings and polished floors define the central hall with decorative fretwork, an elegant formal lounge room with open fire place, generous bedroom accommodation and stylish main bathroom and separate powder room. Warm and inviting, the open plan family living area and adjacent kitchen steps out onto an extensive verandah – the perfect place to enjoy indoor-outdoor summer entertaining while overlooking the north facing rear garden and swimming pool.
Positioned just steps from North Adelaide and vibrant Prospect Road where you can enjoy the buzz of highly sought after inner city culture and lifestyle with nearby restaurants, cafes, shopping and Parklands just some of the attractions. Plus the added benefit of being within easy access to some of Adelaides premium schools including Blackfriars Priory School, Prescott College, North Adelaide Primary School, and Adelaide High and Botanic High Schools.
Take advantage of this incredible chance to secure your familys future; inviting you to move in and enjoy yet offering scope to further enhance and update if required. Be sure to view this elegant home and all it has to enjoy – a rare offering.
Features include :
• Positioned on 892sqm (approx.)
• Beautiful leadlight and open fire-places
• Automatic gates
• Solar heated pool
• Security system
• Auto control watering system
• Ducted reverse cycle air conditioning & Hydronic gas heating
• Established gardens and fruit trees
• NBN connected
• Tool shed
All information provided (including but not limited to the propertys land size, floor plan and floor size, building age and general property description) has been obtained from sources deemed reliable, however, we cannot guarantee the information is accurate and we accept no liability for any errors or oversights. Interested parties should make their own enquiries and obtain their own legal advice.
If you have any enquiries please contact Fox Real Estate direct on Display phone number
























