For more details and viewing please call Real Estate Alliance Victoria on Display phone number
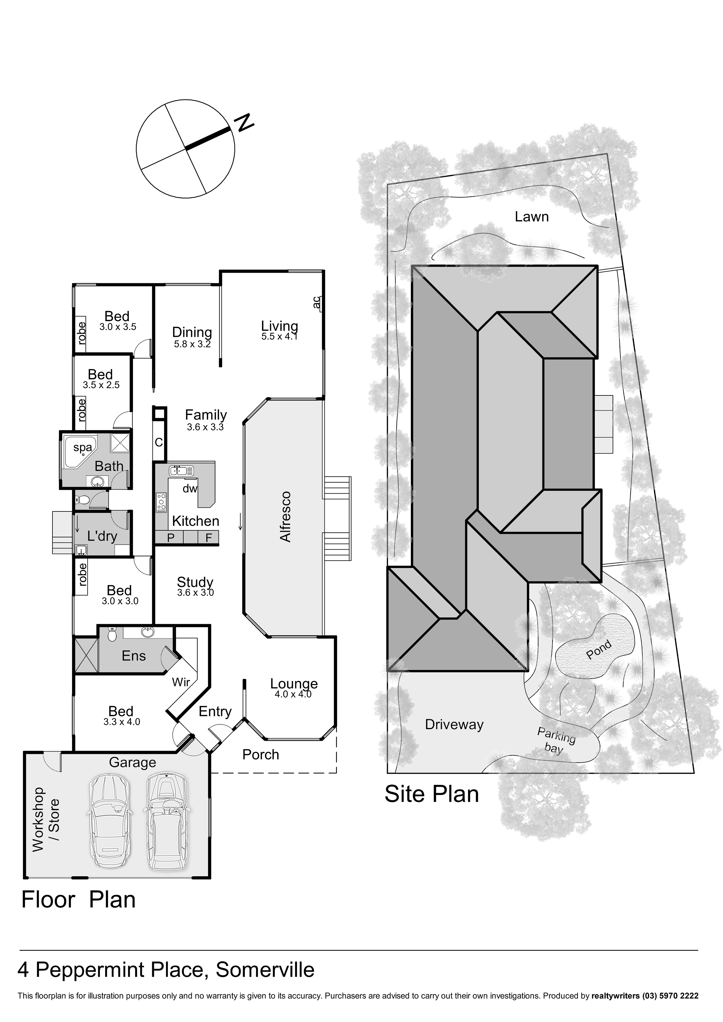
A rare offering in the ever so popular ‘Woodlands Estate’ is this spacious family home situated in a peaceful tree-lined cul-de-sac. Well presented from top to bottom, this roomy four bedroom plus study residence with its generous open plan living is simply ideal for the growing family. Forming the heart of this light filled home is a well fitted timber kitchen comprising of all the essentials. Generous living spills over several zones to include formal lounge, casual meals, formal dining and family living, all of which over look the tremendous alfresco area providing absolute year round entertaining. The master bedroom benefits from a walk in robe and very spacious ensuite, as the other three double robed bedrooms all share in the family bathroom complete with corner spa bath, plus separate toilet and full laundry facilities. Gas ducted heating and spilt system air conditioning ensure endless comfort as a study, polish flooring, fresh paint and window furnishings help add the finishing touches. Storage is in great supply with the triple garage providing direct internal access, there is also rain water tank and picturesque front garden. Providing every essential, this terrific family home stands just moments to schools, major shopping and every major Somerville convenience to make for a must to add to your inspection list.
If you have any enquiries please contact Real Estate Alliance Victoria direct on Display phone number

