For more details and viewing please call Fox Real Estate on Display phone number
Move in and enjoy the quintessential Prospect lifestyle provided by this fully renovated character laden home where classic period features blend seamlessly with modern light filled renovations.
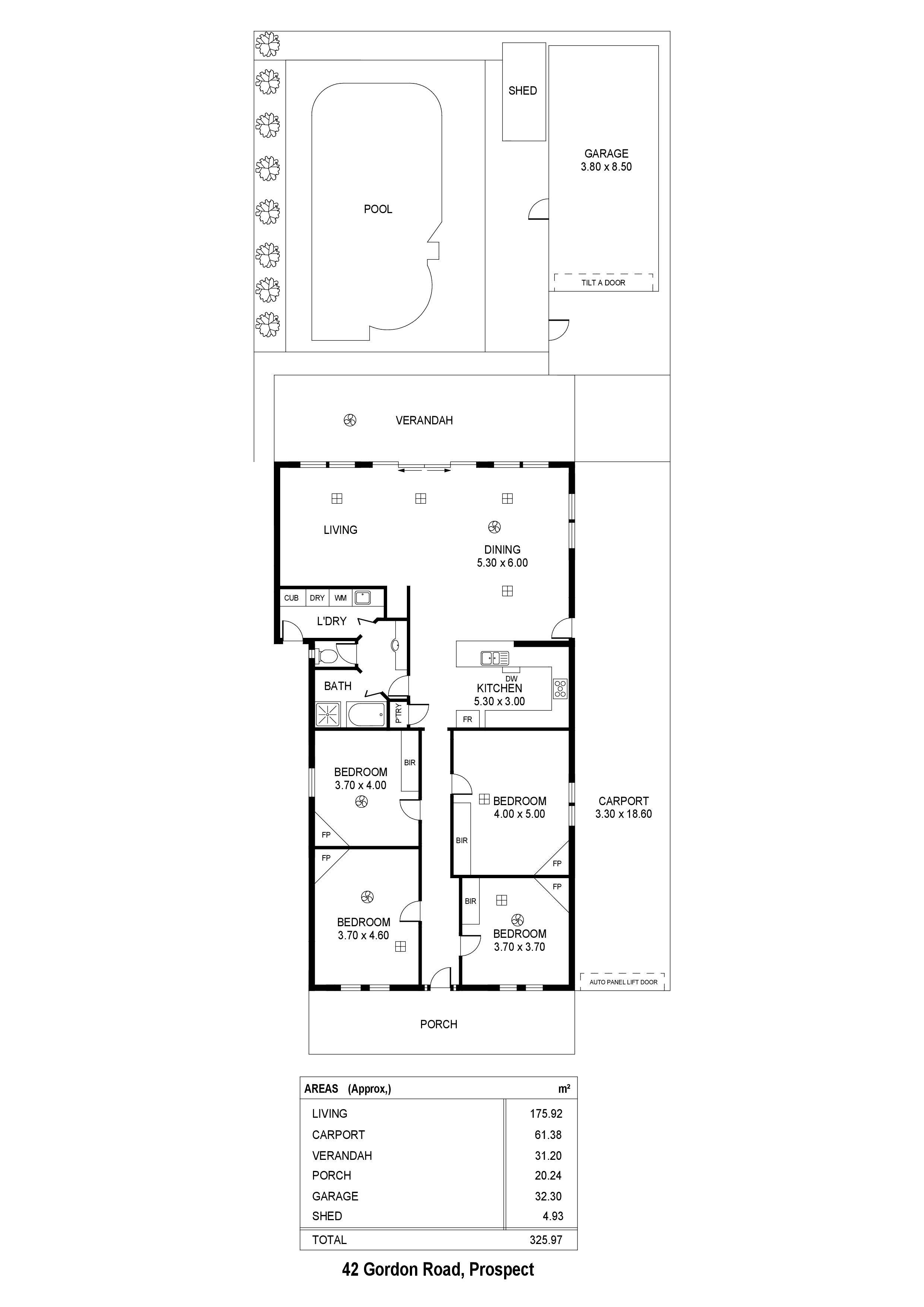
Highlighted by a neutral scheme throughout, enhanced by lofty high ceilings and stunning leadlight. The spacious extension at the rear incorporates the well-appointed kitchen featuring stone bench-tops and gloss white cabinetry, all overlooking the light and open dining and living room.
Framed by warmth of rich timber framed sliding doors, step seamlessly out to the north-facing all-weather verandah - a place to enjoy all year round alfresco living and entertaining while overlooking the in-ground pool.
A valuable long driveway behind auto lift door allows secure undercover parking for cars, trailer, boat or caravan.
Ideally situated in this beautiful tree-lined street, enjoy a short stroll to the delights of Prospect Roads entertainment and retail hub, and within easy reach of some of Adelaides finest schools – here is an opportunity not to be missed.
Extra special features of this beautiful home :
• Land size 624sqm (approx.)
• Meticulously maintained gardens
• Modern fully tiled bathroom
• Solar electrical system
• Ducted reverse cycle air conditioning
• Secure fence and auto gate access
• Café blinds
• Garage and pool shed
All information provided (including but not limited to the propertys land size, floor plan and floor size, building age and general property description) has been obtained from sources deemed reliable, however, we cannot guarantee the information is accurate and we accept no liability for any errors or oversights. Interested parties should make their own enquiries and obtain their own legal advice.
If you have any enquiries please contact Fox Real Estate direct on Display phone number


























