For more details and viewing please call Ian Hutchison Real Estate on Display phone number
HOME SIZE TOWNHOUSE WITH OWN STREET FRONT
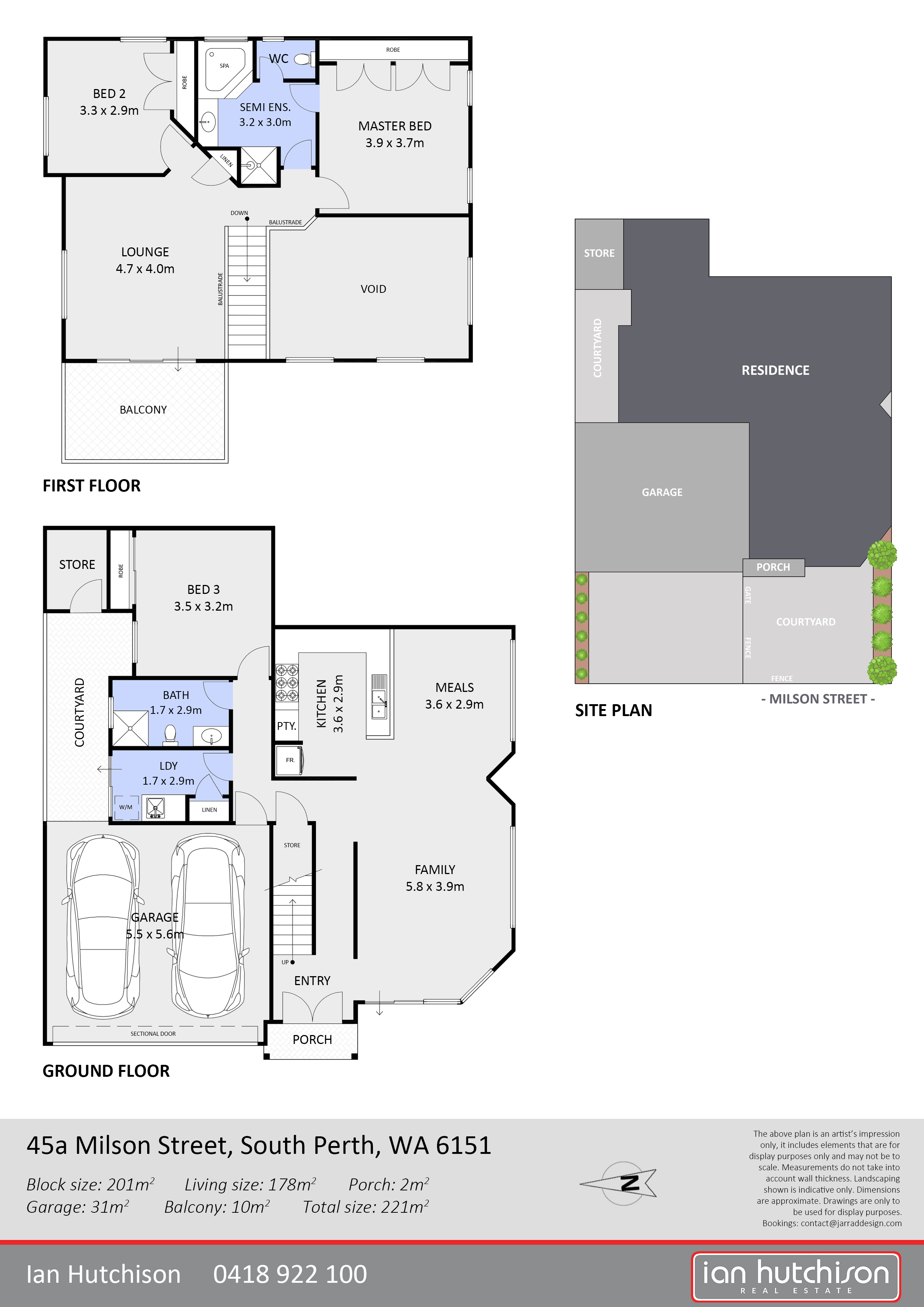
Set in one of South Perths most sought after streets, on a 201sqm Survey Strata block is this spacious townhouse featuring 3 Double Size Bedrooms (ALL with Built in Robes) and 2 Bathrooms. THE DOUBLE SIZE BEDROOM with air-conditioning AND adjoining BATHROOM ON THE GROUND FLOOR LEVEL is ideal for that adult child living at home/elderly parent or visitor. A pair of front entry doors lead to a tiled entry hall, air-conditioned living area with sliding doors to a PRIVATE front courtyard and separate dining area makes the lower level ideal for entertaining. A spacious kitchen with lots of cupboard space, storage under the stairs, laundry with storage and external access to small side courtyard and a double garage with secure internal access to the home.
The air-conditioned upper level features a living area leading to a large balcony; the master bedroom with semi ensuite bathroom and 2nd double size bedroom.
Situated in a very quiet landscaped street, within a comfortable stroll to the picturesque River Foreshore Parklands, Angelo Street Shops and Cafes, transport, Wesley College and within easy access of Trinity, Penrhos and Aquinas Colleges and also South Perth and St Columbas Primary Schools.
Additional Features:
* Soaring Ceiling in the Living Room
* Air-conditioning
* External Storeroom
* Recently painted externally
* Own Driveway
* Currently Rented (Periodic Tenancy)
* No Strata Fees
Council Rates: $2,607.35 pa
Water Rates: $1,395.84 pa
If you have any enquiries please contact Ian Hutchison Real Estate direct on Display phone number



