For more details and viewing please call Fox Real Estate on Display phone number
Positioned in one of Prospects most desirable streets and boasting a picturesque presence, perfectly framed by a picket fence and standard roses, this circa 1918 Villa that has been lovingly restored and beautifully maintained to provide the perfect balance of character and charm with modern features for todays family lifestyle.
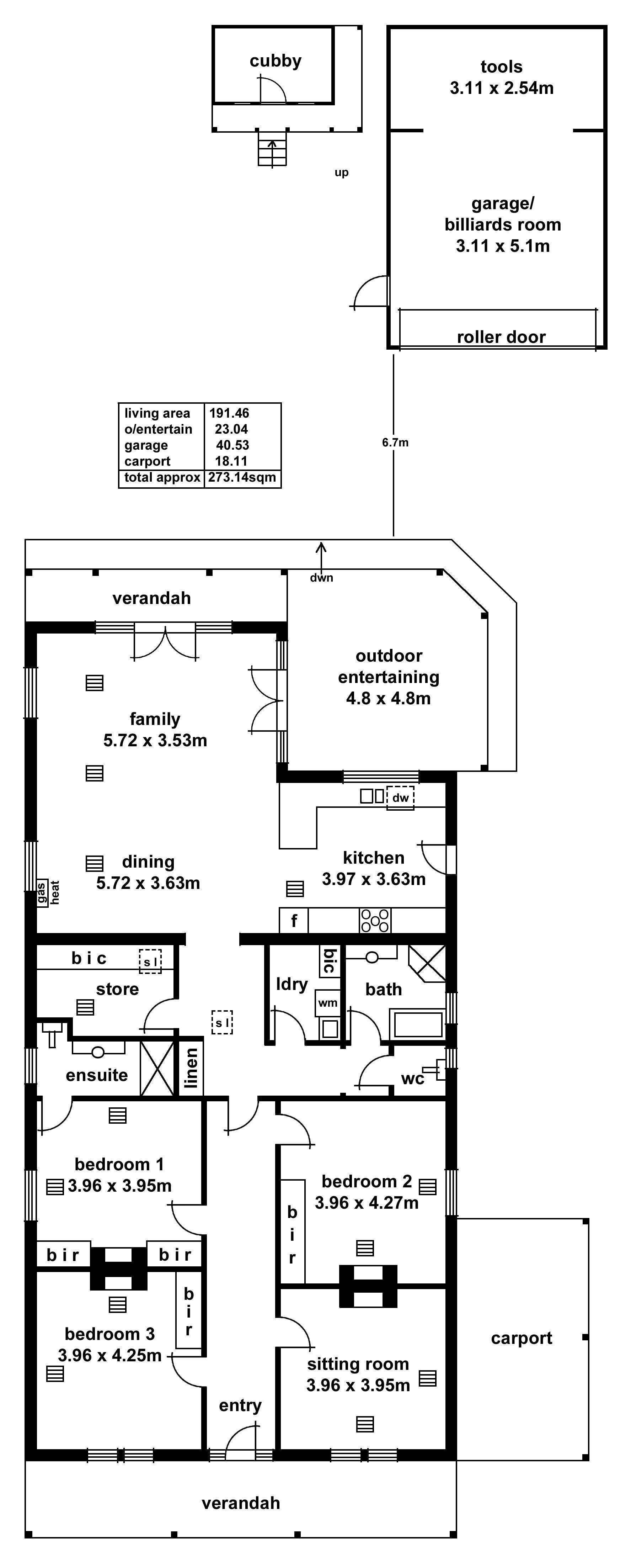
The broad verandah creates an irresistible first impression with an invitation to step inside. The central hallway introduces traditional main rooms, the refined sitting room, 3 large bedrooms that all feature original open fire places, the master boasts an en suite bathroom.
Seamlessly flowing out to the open plan living and dining room, enjoy this delightfully light filled space with high ceilings, and French doors that open out onto the alfresco living area, the perfect place to enjoy year-round entertaining while overlooking lush green lawns surrounded by easily maintained garden beds and highlighted by a weeping Mulberry tree. Capable of any culinary feat, the gourmet kitchen is well appointed with a host European Ilve and Smeg appliances plus a generous size pantry and storage options.
Wonderful lifestyle features of this home include:
- 3.3m high ceilings and timber floors throughout
- Storage room
- Large garage with roller door – currently used as a billiard room
- Family bathroom which adjoins a separate toilet
- Superior heating and cooling throughout, ducted gas heating, ducted reverse cycle air conditioning and wall mounted gas heater in open plan living
- Long driveway and carport that fits 4 cars
- Cubby house
Ideally positioned in this sought after tree-lined street and surrounded by parks and family attractions such as Peppermint Gums Park, Soldiers Memorial Gardens and tennis courts, and Barker Gardens. Centrally locatedn to Prospect Roads cafes and retail shops as well as Northpark and Sefton Plaza moments away. Currently located within the catchment zone of Adelaide High School and Adelaide Botanic High School and easy access to some of Adelaides prominent private schools.
All information provided (including but not limited to the propertys land size, floor plan and floor size, building age and general property description) has been obtained from sources deemed reliable, however, we cannot guarantee the information is accurate and we accept no liability for any errors or oversights. Interested parties should make their own enquiries and obtain their own legal advice.
If you have any enquiries please contact Fox Real Estate direct on Display phone number






















