For more details and viewing please call Fox Real Estate on Display phone number
Set in a prime eastern location close to a choice of quality primary and secondary schools, shopping, public transport, Linear Park and the newly upgraded Felixstow Reserve, this 3 bedroom family home features many energy efficient upgrades and has plenty to offer.
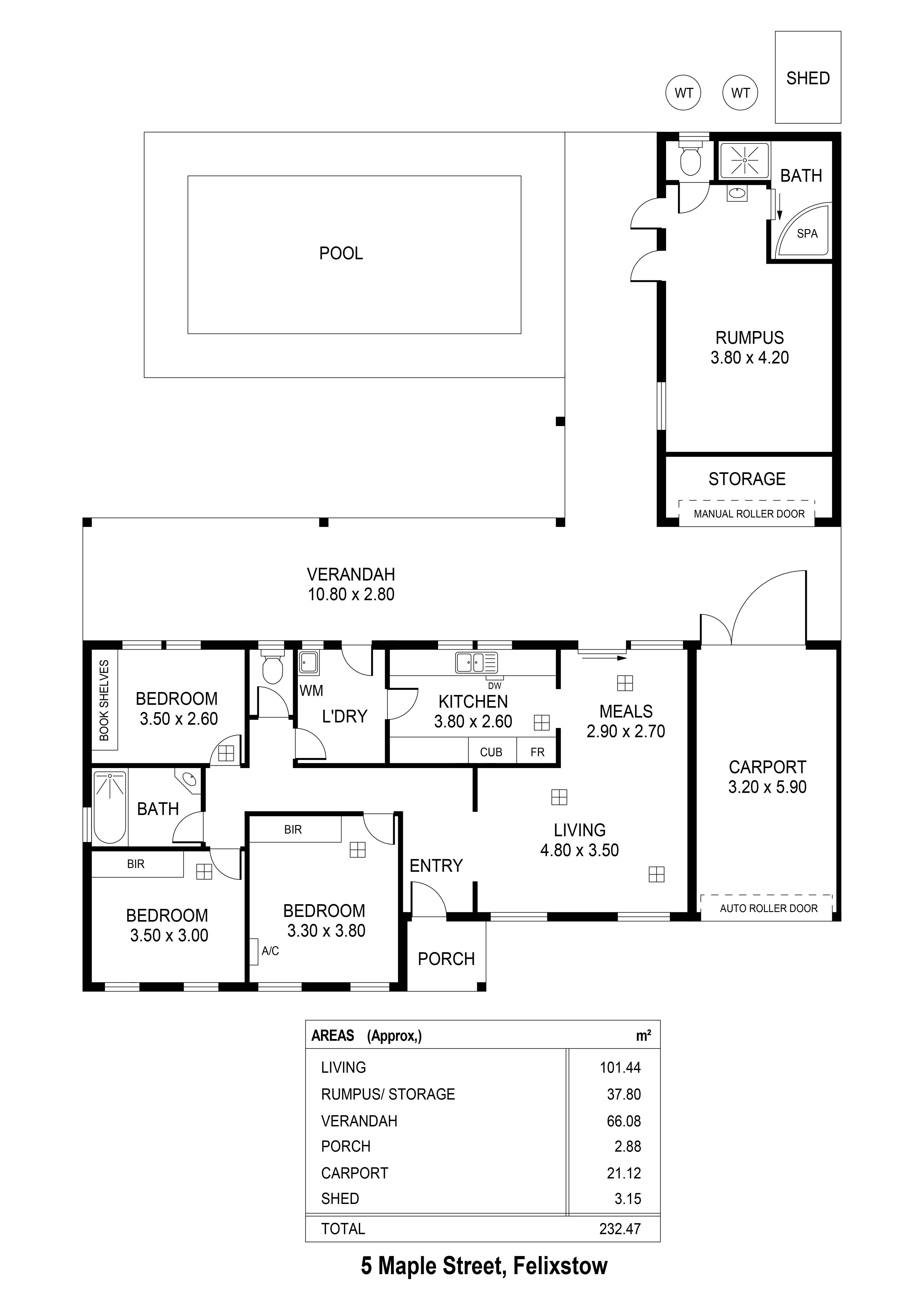
With open plan living area to the front of the home, adjacent to and meals area galley-style kitchen featuring European made stainless appliances, loads of storage and large window that overlooks the verandah patio and back garden to the in-ground pool. Two of the bedrooms are good size, both include built-in robes, the third includes a book shelf across the back wall. A bonus is the separate granny flat and bathroom with spa bath – an area with so many options for use, consider a games room, studio, pool house, teens retreat, man-cave or she-shed the choice is yours.
Set on a 585m2 allotment (approx.) and surrounded by mature gardens and fruit trees and vines – enjoy the satisfaction of growing fresh produce in your own back-yard. There is so much to appreciate living in this wonderful location close to specialty shops, cafes and supermarkets along Payneham Road, Glynburn Road and Lower North East Road, and with easy access to Klemzig interchange O-Bahn, and the Adelaide CBD only minutes away.
• Double glazed windows with bonus tilt mechanism for ventilation
• 1.5kW solar system connected to grid
• Insulated ceiling
• Evaporative air-conditioning, plus split system reverse cycle air conditioner in master bedroom
• Central gas heating
• Mature fruit trees and extensive edible plants throughout front and rear gardens
• Wired for Foxtel and digital TV antenna
• Large return verandah patio, an excellent space for outdoor entertainment
• In-ground salt water pool with auto chlorinator
• 3 x 1800 litre rain water tanks, 2 of them ready to be plumbed in to the granny flat
• 2m high Colourbond good neighbour fencing
• Garage motorised roller door with remote control
• Garden and storage shed plus workshop storage
• Very safe and very quiet area, friendly neighbours
All information provided (including but not limited to the propertys land size, floor plan and floor size, building age and general property description) has been obtained from sources deemed reliable, however, we cannot guarantee the information is accurate and we accept no liability for any errors or oversights. Interested parties should make their own enquiries and obtain their own legal advice.
If you have any enquiries please contact Fox Real Estate direct on Display phone number






















