For more details and viewing please call Wyndham Real Estate on Display phone number
Wyndham Real Estate proudly presents a unique and outstanding property opportunity that aligns perfectly with your investment goals. Great first home with a lot of extras that will make it also suitable for NDIS / SDA property - offers 3 bedrooms (2 Robust bedrooms and a non-SDA bedroom). Plus Study This property has been thoughtfully designed and created to meet the unique needs of the National Disability Insurance Scheme (NDIS) residents, making it a distinctive investment in an ever-growing market.
Potential to be used as co-living property!
HOME HIGHLIGHTS
Total return of the NDIS SDA annual allowance would be up to Rental income per participant is $83,018 per annum with secure leases.
Fully Compliant with SDA Certifications
Excellent NDIS SDA Service Provider in Place
High Cash Flow Investment
Close to all amenities and in an exceptionally good location
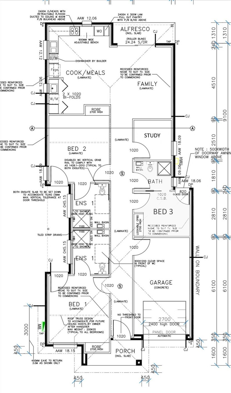
Category : Fully Accessible 3 bedroom + 3 Bath + 1 Car +
2 Participants + OOA
Key Features and Upgrade Inclusions:
Internal Features:
* Ensuite located in EVERY bedroom
* Brand new!
* Split System in Every Bedroom and Main Living Room
* 2340H x 1020W Solid Core Internal Doors
* Lockable Vandal Core Handles Throughout
* 600mm Appliances with Induction Cooktop
* 20mm Stone Bench Throughout
* Ensuite with Disability Toilets, Fixtures, and Grab Rails in Every Bedroom
* Recessed Tiled Shower Bases with Tile Strip Drain Finish
* Slip Resistance Porcelain Floor Tiles in All Wet Areas
* Hybrid Waterproof & Slip-Resistant Flooring Throughout
* Soundproof Insulation in All Internal Walls
* Intercoms Between Rooms and Carers Room
* LED Downlights Throughout
* Alarm System with Sensor Points
External Features:
* Modern Facade
* Brick In-Fills over Garage & Windows
* 450mm Eaves to Facade
* 3000mm High Ceiling
* 2340H x 1020W Front Entry Door
* Toughened Glass for All Windows and Doors
* Heavy-Duty Fly Screens for Windows and Rear External Doors
* Roller Holland Block-Out Blinds
* Driveway
* Letterbox
* Clothesline
* Full Share Fencing
* Front & Rear Landscaping
* Wheelchair Accessible Outdoor Space
* Solar Panel Booster Hot Water Service
* Remote Control for Garage Door
Virtual tour link available
https://youtu.be/VQOTOYPuytM
If you have any enquiries please contact Wyndham Real Estate direct on Display phone number


