For more details and viewing please call Richardson & Wrench Wilston - Windsor on Display phone number
This INVESTMENT property is for sale on behalf of a DHA lessor and has a Defence Housing lease in place until 2023, with a further 3 year option (see below for further details).
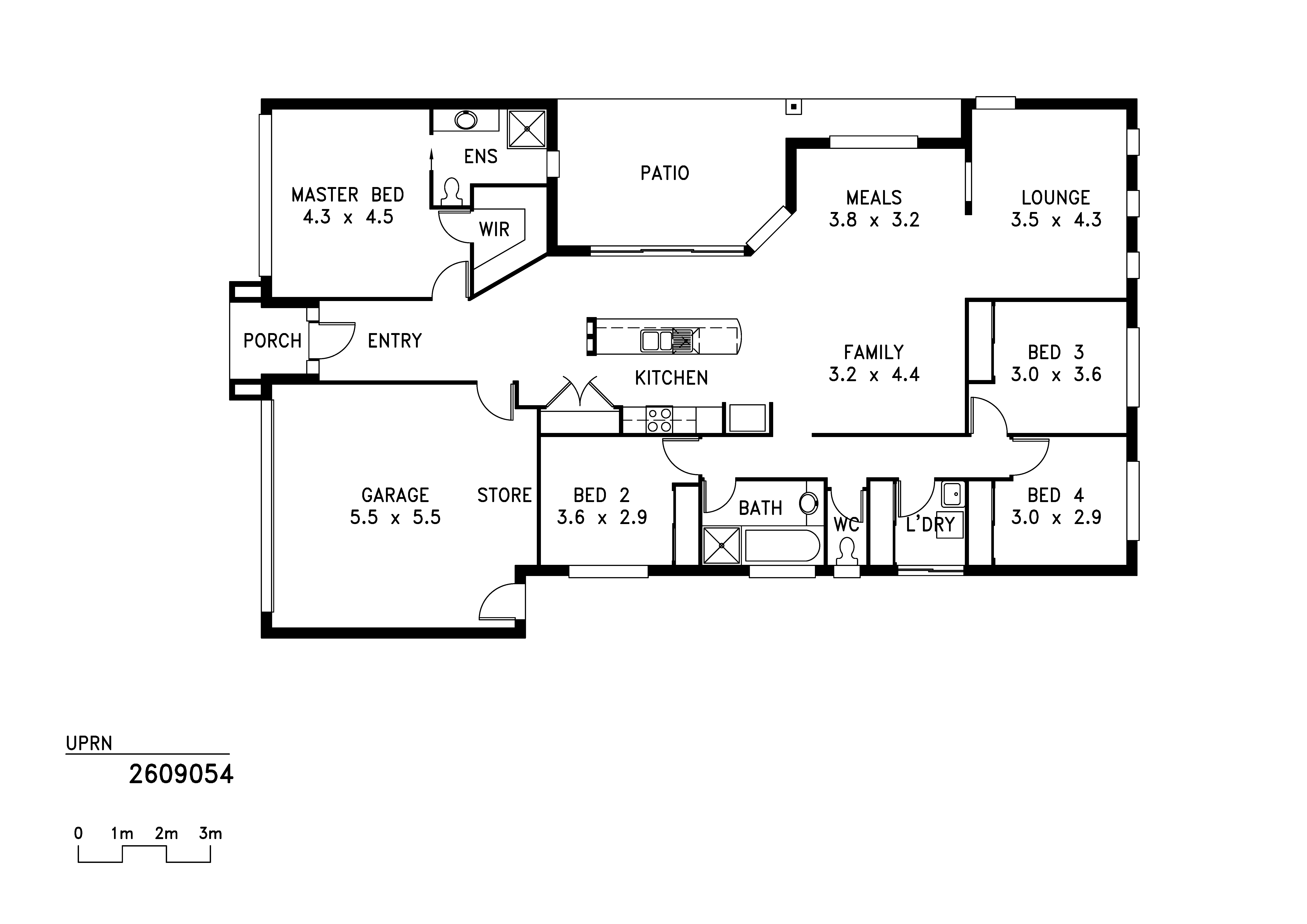
This 4 bedroom house features open plan kitchen/family/dining area opening to a covered rear patio. There is also a separate lounge room with air conditioning, which adds to the spacious living areas. The master bedroom has a good sized walk in robe and ensuite. There is air conditioning in the living area and master bedroom. All bedrooms have built-in wardrobes, ceiling fans and security screens. There is a fully fenced back yard with low maintenance garden.
LEASE DETAILS
Lease start date: 21/05/2017
Lease end date: 20/05/2023
Lease option: 1 x up to 36 months (Note the option and right to vary is at DHAs discretion)
Right to vary: 1 x up to 12 months Reduction and 1 x up to 12 months Extension
Rental guarantee: $425pw
DHA LEASE BENEFITS
* DHA guarantee to pay the rent even if the property is vacant.
* DHA Property Care, an all-inclusive service fee, covers a range of property related services.
* The property is cleaned at the end of each tenancy period.
* The lessor may also be entitled to a lease-end make-good (refer to the DHA Lease Agreement)
* A rental floor may apply to the DHA Lease Agreement (applicable to specific lease editions and applies to commencement rent).
In accordance with DHA regulations, we advise that this property will only be available for private inspections and to pre-qualified buyers. Photos are supplied under agreement by DHA and are for illustration purposes only.
(Visit www.dha.gov.au to learn about the benefits of investing in a DHA property).
The suburb of Springfield Lakes is part of Australias largest master-planned community, encompassing an area of 7,200+ acres and with a current population of more than 18,000. Residents also have easy access to their jobs or recreational pursuits in either the Brisbane CBD (30 minutes) or the heart of the Gold Coast (one hour).
Please contact Specialist Agent for further information or to arrange an inspection.
If you have any enquiries please contact Richardson & Wrench Wilston - Windsor direct on Display phone number




