For more details and viewing please call GSRE.COM.AU on Display phone number
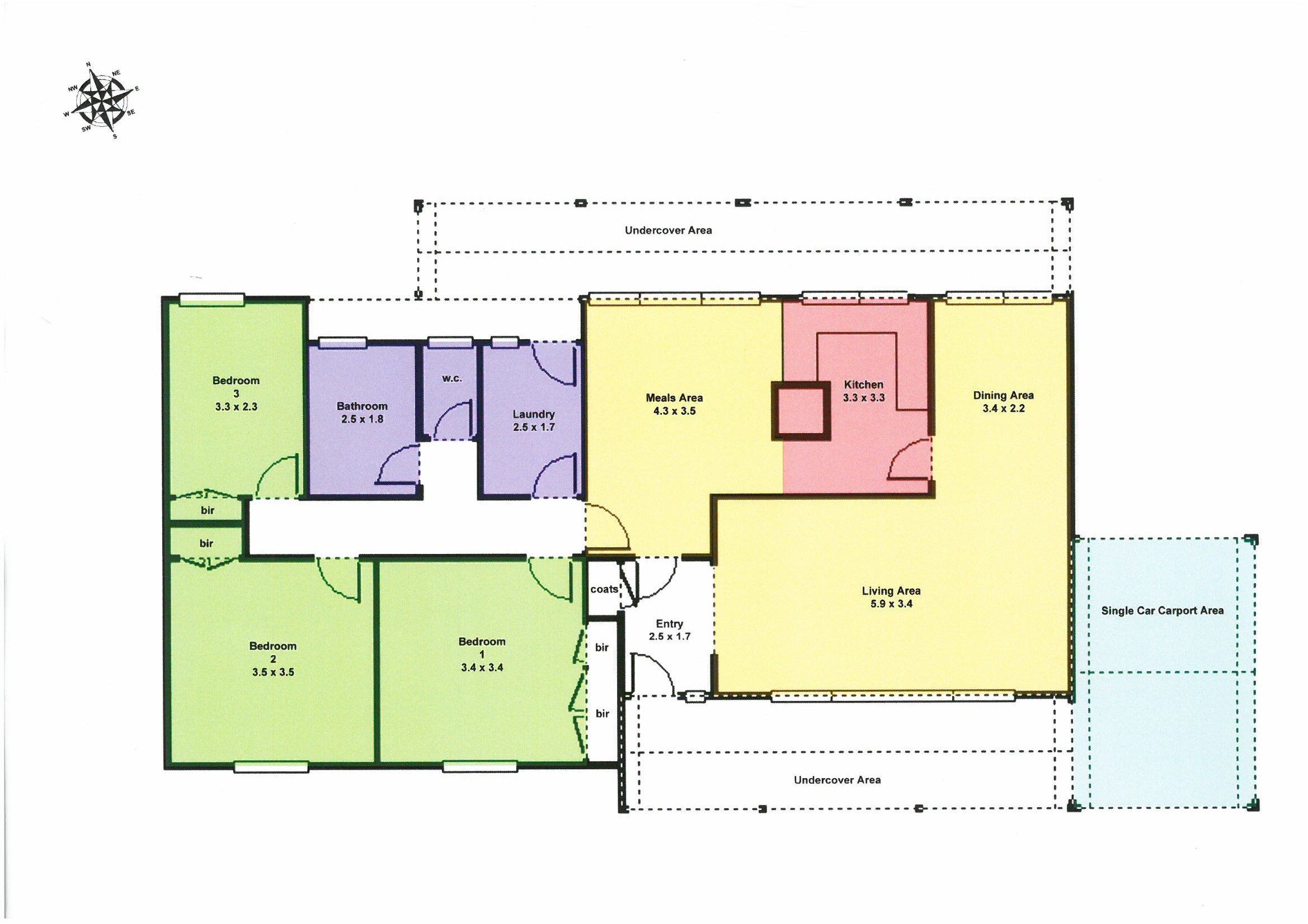
This 3 bedroom home has a spacious living room with extra study nook, the open plan kitchen/dining area is light and bright and opens onto a covered outdoor area. There are two access points to the large enclosed rear yard which features a double garage and plenty of room for a boat or caravan, At the front of the home there is also a single carport. Located close to primary and secondary schools, shopping center, parks and bus stop.
At this price an inspection is a must.
“THINKING OF SELLING in the Ballarat area gsre real estate OFFERS up to
$2500 of FREE advertising in the Ballarat Courier. New landlords receive 13 weeks FREE rental management fee.
If you have any enquiries please contact GSRE.COM.AU direct on Display phone number
