For more details and viewing please call Fox Real Estate on Display phone number
Enjoy a carefree lifestyle in this attractive and feature packed near new home. With a classic exterior and contemporary interior plus a touch of luxury, the scene is set for a place to call home.
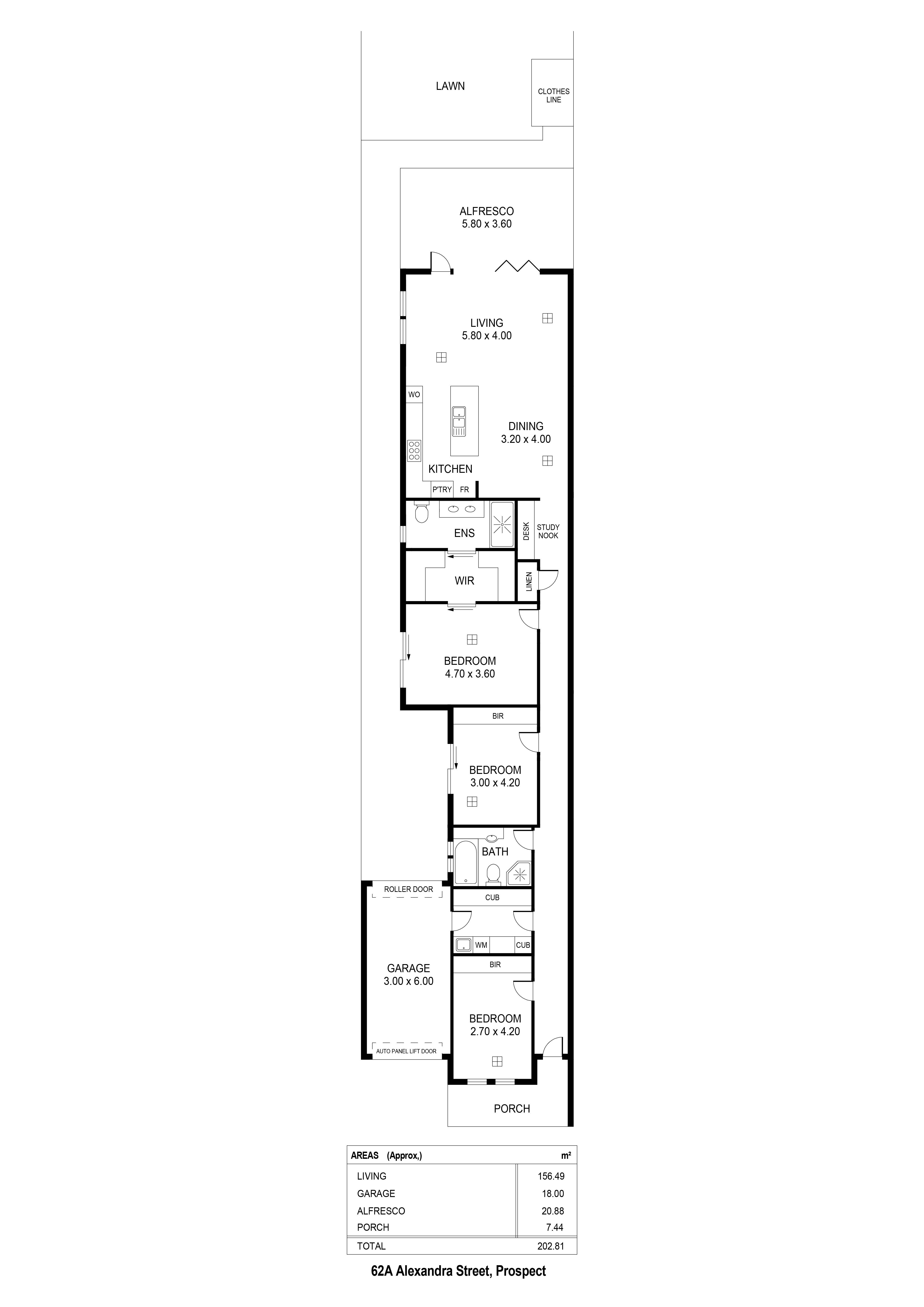
A sleek white kitchen complements the homes style, including gloss white cabinets and stainless steel appliances – cook up a storm while overlooking the all-important open plan dining and living area. Stacking bi-fold doors open up to create the perfect spot for entertaining, allowing guests to flow freely inside and out.
Three well-proportioned bedrooms (the main features a walk-through robe and luxurious en-suite bathroom), while both other bedrooms include built in robes and are well serviced by a spacious light centrally located bathroom.
Re-claim your weekends! Both front and rear gardens are easily maintained. Extras include an energy saving reverse cycle air conditioner thats zoned to ensure everyone is comfortable, secure car-park with drive through access, great storage options and bonus study nook.
Situated in this prime Prospect location, moments from the local café and entertainment scene, retail options of Churchill Centre and transport all close by. Upsizing, downsizing or investing, this could be your new address!
All information provided (including but not limited to the propertys land size, floor plan and floor size, building age and general property description) has been obtained from sources deemed reliable, however, we cannot guarantee the information is accurate and we accept no liability for any errors or oversights. Interested parties should make their own enquiries and obtain their own legal advice. Should this property be scheduled for auction, the Vendors Statement can be inspected at our office for 3 consecutive business days prior to the auction and at the auction for 30 minutes before it starts.
If you have any enquiries please contact Fox Real Estate direct on Display phone number





















