For more details and viewing please call Fox Real Estate on Display phone number
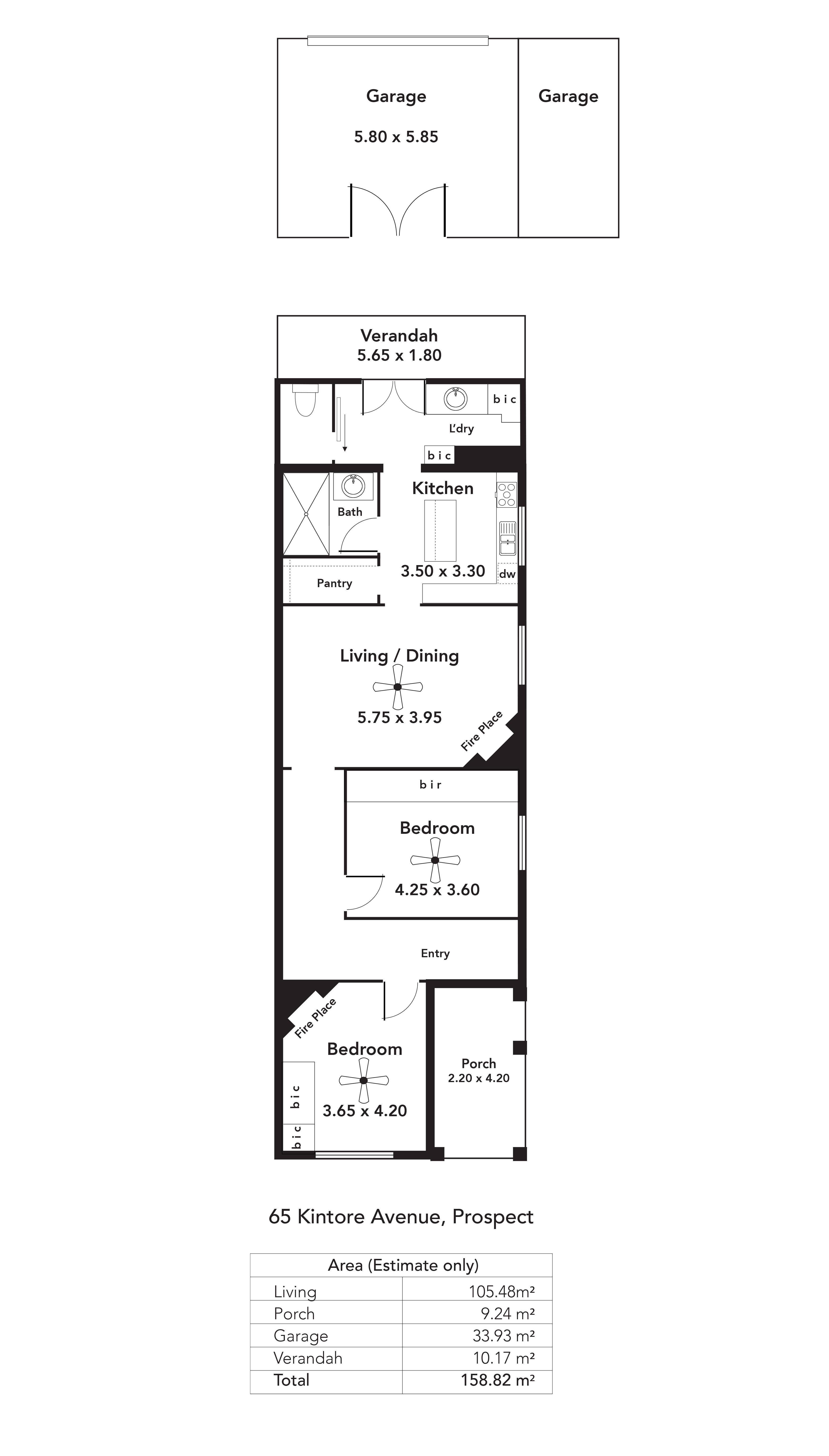
Introducing this charm filled maisonette offering an ideal floor plan. Be impressed at first glance by the flow of jarrah floors through the front entrance, bedrooms and flowing into the main living area. High ceilings flow through into the modern kitchen, brand new bathroom, and walk in pantry. All leading through to a recently landscaped entertainers yard, and best of all, 3 car garage with rear lane way access! This one ticks all the boxes..
Further features include:
- Ducted reverse cycle Daikin air conditioning throughout
- Rinnai instant gas fire heater to main living
- Brand new bathroom with separate w/c
- Modern kitchen, stone island top, Asko dishwasher, electric oven and gas cooktop
- LED down lights
- Alarm system
- 3 car garage and rear lane access
- Landscaped front and rear yards with heritage brick pavers
- Built in robes to both bedrooms
Plus much more!
This property has not only been updated with convenience in mind, it is also nestled in an area where convenience is of the utmost importance. Walk to Prospect road and enjoy local cafes (Muratti at the end of your street), restaurants and shopping. A brisk walk down the adjacent laneway will find yourself at North Adelaide Football club and oval. Surrounded by recreational parks and facilities, public transport and express bus into city a stones throw away. Zoned Adelaide Botanic High, and Nailsworth Primary.
Simply move in and start living!
Council Rates $319.00 pq
SA Water $440.00 pq approx.
Insurance $700.00 pa approx.
All information provided (including but not limited to the propertys land size, floor plan and floor size, building age and general property description) has been obtained from sources deemed reliable, however, we cannot guarantee the information is accurate and we accept no liability for any errors or oversights. Interested parties should make their own enquiries and obtain their own legal advice. Should this property be scheduled for auction, the Vendors Statement can be inspected at our office for 3 consecutive business days prior to the auction and at the auction for 30 minutes before it starts.
If you have any enquiries please contact Fox Real Estate direct on Display phone number



























