For more details and viewing please call Your Price Real Estate on Display phone number
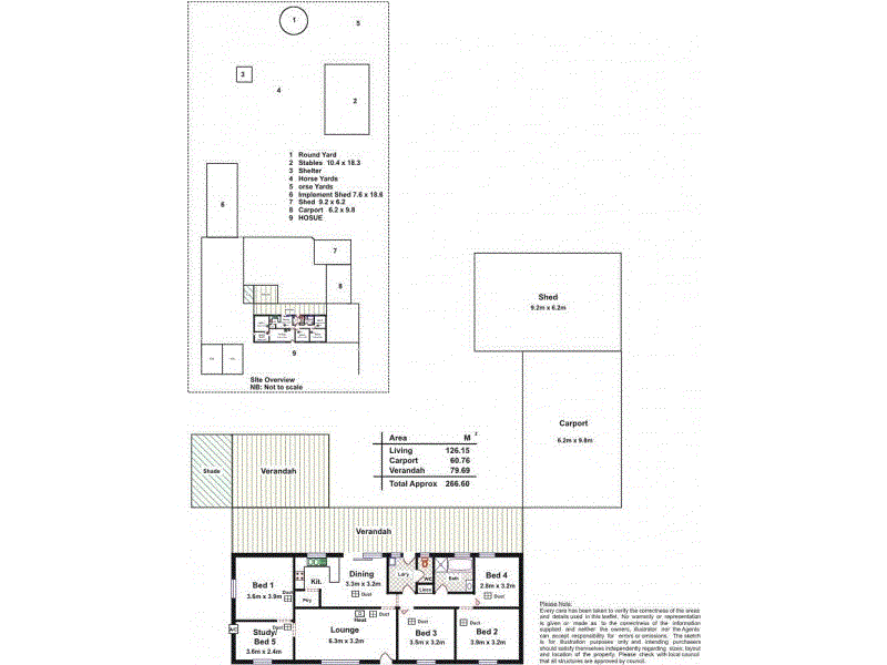
Situated on 45 acres of prime land, this established equine property offers a myriad of uses.
Only 5 minutes from Adelaide’s leading Equine Health and Performance Centre at Roseworthy Campus and 10 minutes from the Northern Expressway (M2) for a quick commute to Adelaide CBD or the Sturt Highway (A20) for ease of travel interstate.
Picture yourself driving into a property that provides all the creature comforts for your equine athletes.
You will first notice the large 60m x 40m stable complex with 4 existing stables, breezeway, washbay and tack up area, plus room to build an additional 4 stables with an outside yard. Alongside is the 18m x 6m Implement shed, Suitable to house a large transport truck, float, tractor or other machinery. Incorporated into the Implement Shed is a 6m x 6m fully lined foaling box.
This property features 10 large horse paddocks all fitted with electric fencing and water provision. Accessible raceways between each paddock provide ease of access for all and make moving horses between paddocks stress-free. In addition, 2 large paddocks of 30 acres and 5 acres surround the property, with high yield cropping and excellent fencing which has been recently updated. These paddocks have the potential to be share farmed, grow your own fodder or increase current yard numbers.
This property is able to generate an immediate income either as a breeding stud or Agistment Centre, due to the high quality infrastructure currently in place. Other features include:
- Stallion Yard with Solid Brick Shelter
- Solid Working Arena with all weather surface, big enough to allow children to ride in a safely fenced arena, built of Quality Bore Pipe Steel.
- Post and Rail Round Yard for lunging or to ride in with an all weather surface.
The current dwelling is a large 4 bedroom home with modern kitchen, refurbished bathroom and main bedroom contains retreat. Fitted with evaporative cooling, new Hot Water Service and plenty of room for outdoor entertaining.
With a 9m x 6m carport, an additional 6m x 9m storage shed and 2 x 6ft fenced dog runs, this property also is eligible to have approval for another dwelling.
An added advantage of this property is the existing approved Development Application for 15 horses on the property, which will continue forth with the new owner and not be affected by recent council changes.
Other Features:
- Currently Zoned Primary Production
- Dual Access via Harris Road and Goss Road.
- Beautiful flat terrain for working and educating your horse.
- Mains power to all out buildings.
If you’re searching for a functional, well established horse property that will make your horses happy – don’t look past this gem. Act Now.
RLA 234 269
Property Code: 673
If you have any enquiries please contact Your Price Real Estate direct on Display phone number



