For more details and viewing please call Hamilton Real Estate on Display phone number
This premium lifestyle property is situated within walking distance to Tarrington’s town centre although set in a private location well back from the highway with 22 acres to create your own hobby farm with five well fenced paddocks plus laneways on town and tank water.
The home was meticulously planned and built, the exterior finished in timeless stone blocks with a verandah enveloping the home giving it a colonial homestead feel with a sweeping front lawn, landscaped and edged featuring fruit trees, a variety of small and larger trees, shrubs and flowers providing colour all year round.
The kitchen continues the colonial theme with Baltic pine cabinetry and is functional with plenty of storage and bench space, dishwasher, electric stove top and wall oven. The kitchen flows into the dining area and living room which features a modern open fire place set in a decorative timber mantle along with reverse cycle heating and cooling to climate control the home.
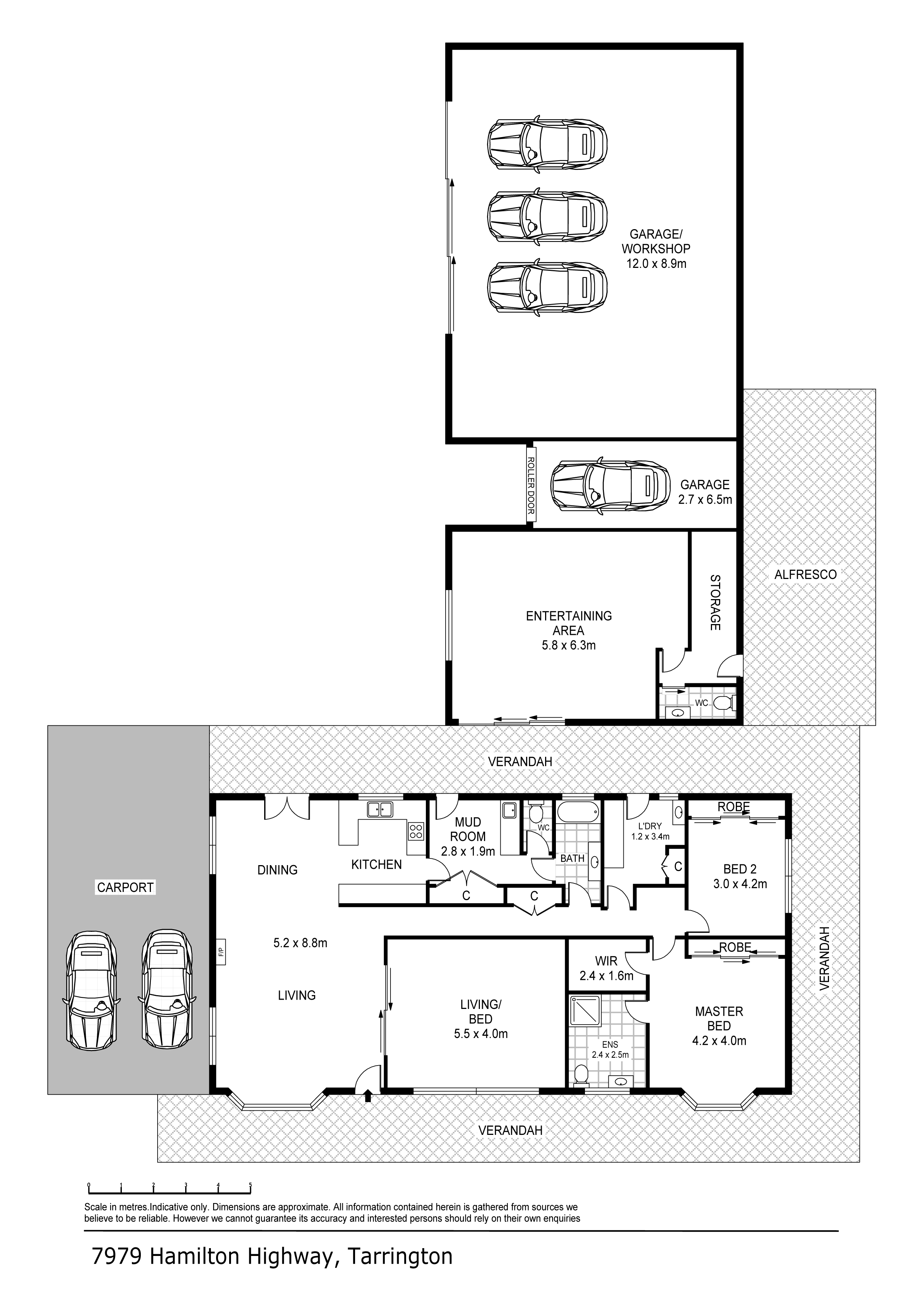
Another living space is off the lounge separated by double glass sliding doors, however could easily be converted into a third bedroom. The main two bedrooms are at the far end of the home, the spacious master with built in robes along with a walk in robe and ensuite equipped with a shower, vanity and toilet.
The family bathroom is central to all zones and complete with a shower over the bath and vanity while the toilet is separate. The large laundry has direct access to outside with good bench space and storage along with a drying cupboard.
Venturing outdoors you will not be disappointed with the storage options. Stepping off the back verandah directly into the ‘man cave’ or possible teenagers retreat which boasts a toilet and vanity with separate storage that can also be accessed from the undercover paved outdoor entertaining area.
A large 12 x 9 metre shed and workshop is conveniently located close to the home with two sliding doors and a side door, concrete, power and water. Another 3 x 9 metre shed with a roller door joins the man cave and workshop with a loft for extra storage. There is an additional 15 x 7 metre machinery shed with power and an attached stable and tack room with hot water, along with cattle yards, loading ramp and a secure chook pen.
This property is a complete package with absolutely nothing to do but move in and enjoy a rural lifestyle while having all the conveniences of living close to town and being part of a community. Arrange your inspection now!
If you have any enquiries please contact Hamilton Real Estate direct on Display phone number



