For more details and viewing please call Fox Real Estate on Display phone number
Views in Adelaide dont get any better than this. From the moment you step into this two bedroom sub-penthouse corner apartment you cant help but be wowed by the amazing views of leafy Adelaide and the River Torrens. The open plan living leads you onto a great balcony with ample space for entertaining.
This wonderful modern apartment to live in or buy as a potentially strong rental investment.
Note: Agent has full financial figures as an investment upon request.
Located in the Watson Art Series Hotel/Apartment building, opened at the end of 2014, this fabulous complex offers todays modern living. Facilities include concierge, full gym, heated pool, secure lockup parking and bistro café.
Sitting on the River Torrens with the wonderful Linear Park, ideal for walking, bike riding or strolling to the city.
The apartment is architecturally designed with high quality features. Floor to ceiling windows, fusing the open plan living and balcony with wonderful views across the Adelaide foothills and the Olympic size lap pool.
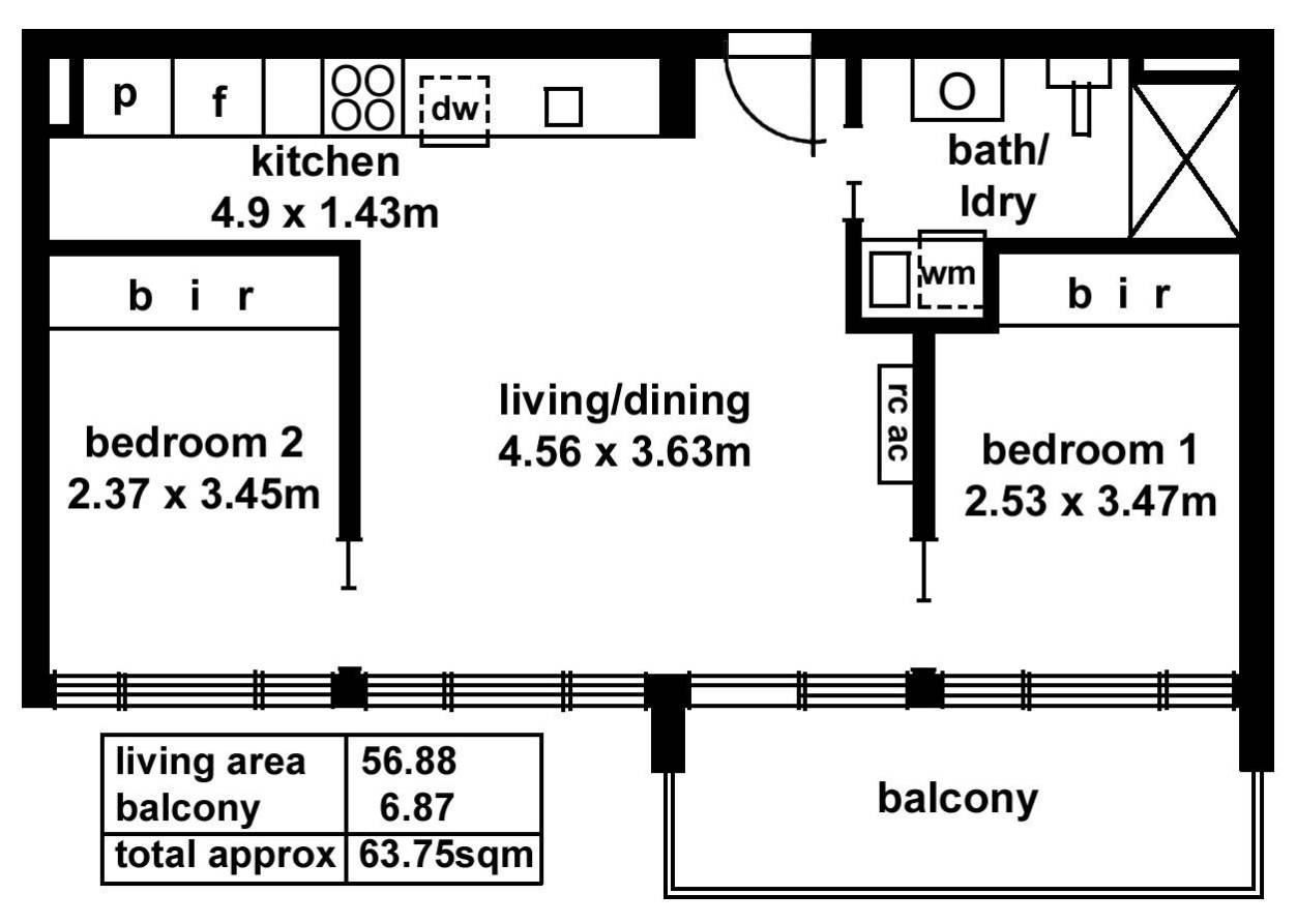
Gourmet style galley kitchen with stainless steel appliances, adjacent to the dining area which is great for casual living. Two full bedrooms, both with built-in robes. Spectacular bathroom and laundry, featuring polished glass porcelain and marble benchtops.
This excellent location, set in central Walkerville only minutes to the city, and close to a number of wonderful cosmopolitan precincts.
LIFESTYLE/INVESTMENT:
Currently this apartment is vacant, move in and live, or can be leased through the hotel or Real Estate Agent.
Features Include:
• Full reverse cycle air-conditioning
• High quality furniture package
• Secure lockup garaging for one car
• Professional business centre
• Alarm and intercom system with 24 hour security
• Cable/satellite and broadband internet access available
• Concierge services
All information provided (including but not limited to the propertys land size, floor plan and floor size, building age and general property description) has been obtained from sources deemed reliable, however, we cannot guarantee the information is accurate and we accept no liability for any errors or oversights. Interested parties should make their own enquiries and obtain their own legal advice.
If you have any enquiries please contact Fox Real Estate direct on Display phone number





















