For more details and viewing please call Fox Real Estate on Display phone number
Built in 2015, this Torrens Titled townhouse is striking both inside and out. With natural light and functionality in mind, the home enjoys large open living spaces, leading you directly outdoors for those summer nights by the bbq.
The colour scheme and finishes have been thoughtfully chosen, a beautiful selection of neutral colours ready for your personal stamp.
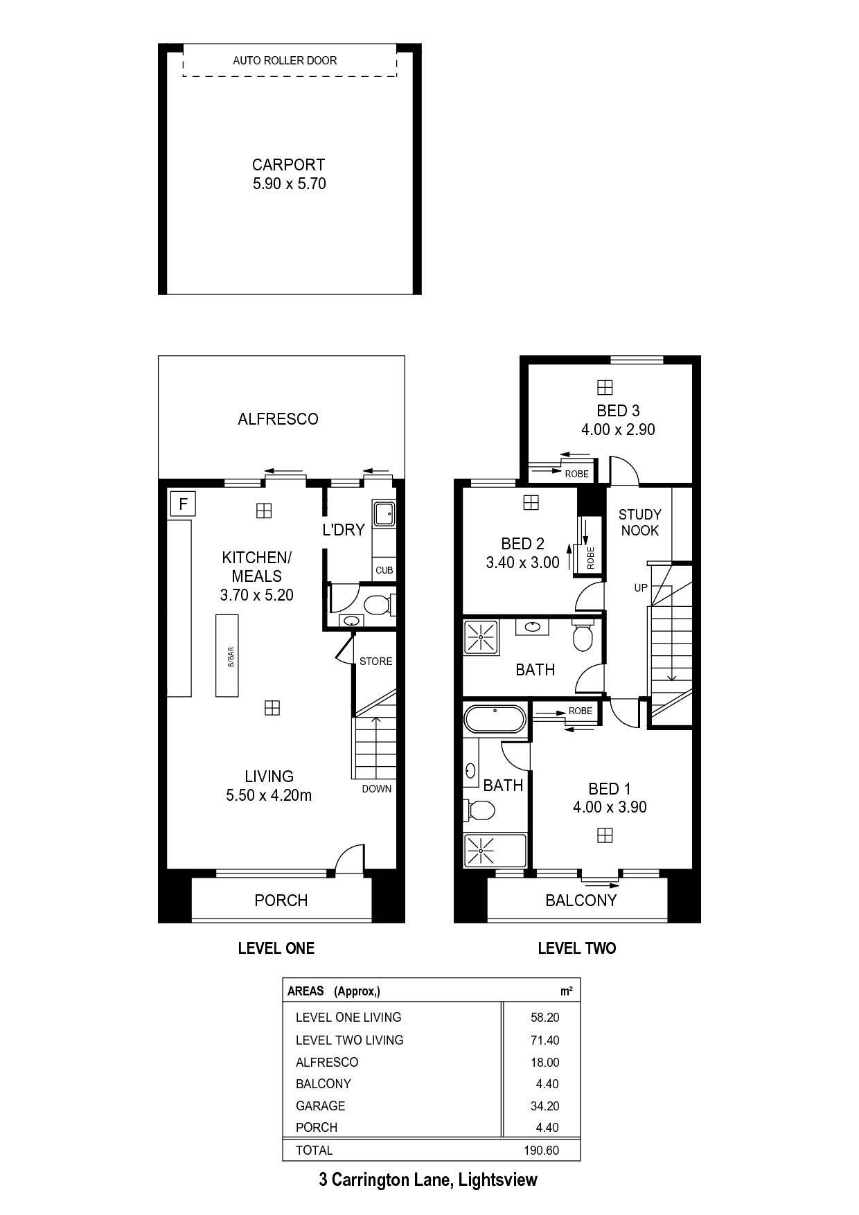
Facing Redwood Avenue you will enjoy rear lane access to a side by side double carport with automatic roller door. A short walk across the easy care, lawned rear yard, takes you directly in to the kitchen and dining area.
The ground level also houses an open plan lounge area with large picture windows taking the outdoors in, the laundry and a third toilet for guests.
Upstairs comprises an office area on the landing, three bedrooms with built-in robes, and the master bedroom with ensuite bathroom. The family bathroom is also on this level.
Accommodation comprising:
* Open plan living
* Clever kitchen with breakfast bar, gas cooktop and dishwasher
* Undercover outdoor entertaining
* Three bedrooms
* Office area
* Side by side double carport with rear lane access
* Ducted reverse cycle air conditioning
* Solar panels
* NBN connection
* Recycled water
* Under stair storage
* Instant hot water
Just 8kms to the CBD, prepare to embrace the luxury. This home is beautifully presented - a true credit to the owners.
Nestled in the fashionably planned and vibrant Lightsview estate with plenty of local suburban reserves, Northgate shopping centre, public transport, quality schooling and all of the important amenities.
Council rates: $858.05 pa
Water rates: $154.25 pq
ES Levy: $89.15 pa
Year Built:Â 2015
All information provided (including but not limited to the propertys land size, floor plan and floor size, building age and general property description) has been obtained from sources deemed reliable, however, we cannot guarantee the information is accurate and we accept no liability for any errors or oversights. Interested parties should make their own enquiries and obtain their own legal advice. Should this property be scheduled for auction, the Vendors Statement can be inspected at our office for 3 consecutive business days prior to the auction and at the auction for 30 minutes before it starts.
If you have any enquiries please contact Fox Real Estate direct on Display phone number
























