For more details and viewing please call Fox Real Estate on Display phone number
Offers By | Close of Business Tuesday 13th May at 5pm (unless sold prior).
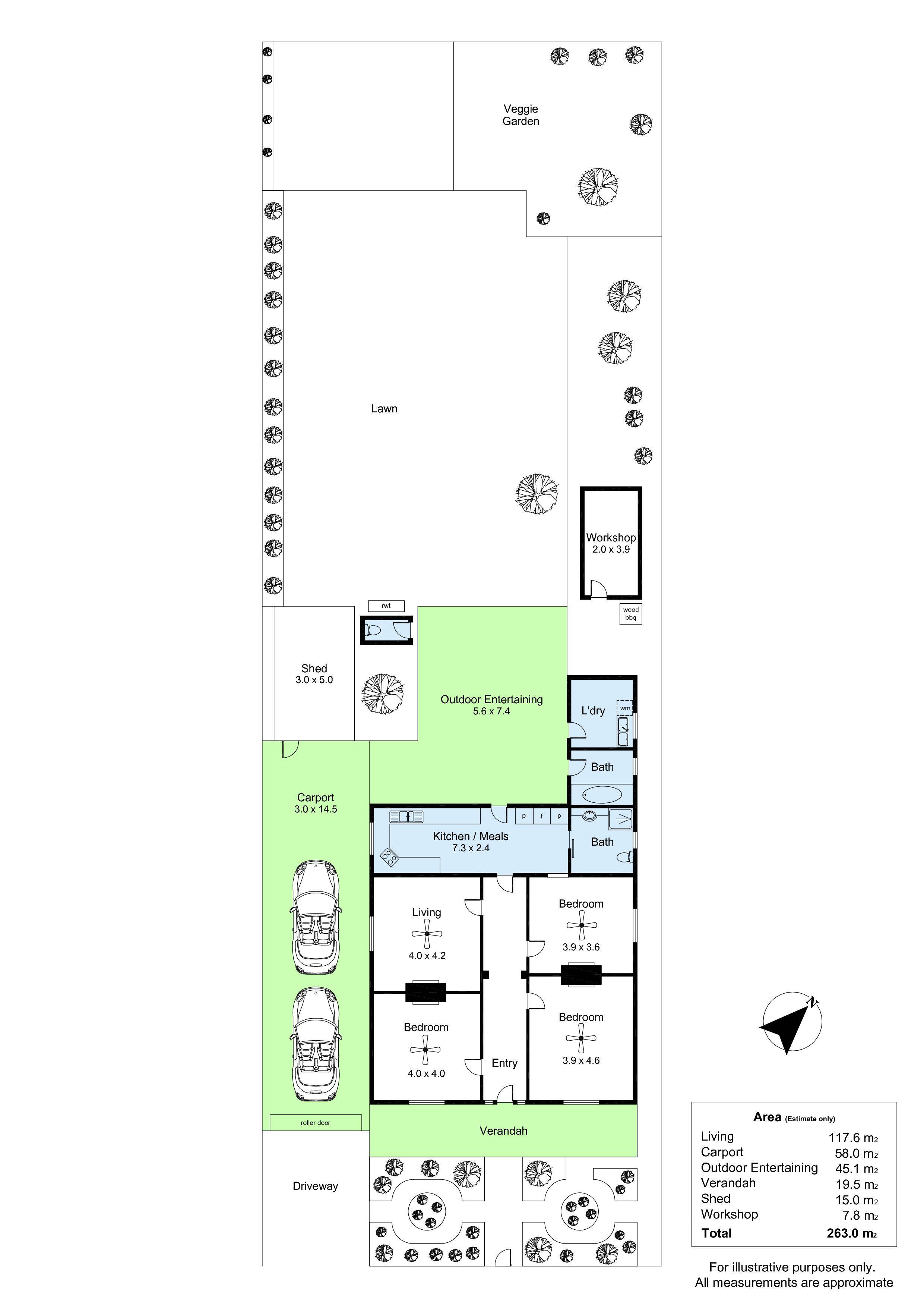
Exceptional opportunity to further renovate and extend (stpc). A rare offering in this super popular location, sited on a substantial land holding of 803sqm (approx).
This generous stone fronted symmetrical cottage, circa 1885 (approx), reflects its heritage with original features which include fire surrounds and lofty ceilings. The central hallway with new timber flooring accesses three recently carpeted bedrooms and living room with gas heater, a neat and tidy eat-in kitchen and main bathroom. The rear lean-to houses a basic laundry, separate bath and an outside WC.
Entertaining family and friends is easy under the all weather pergola and in the expansive north-facing private rear garden, where plenty of potential awaits. Enjoy the established garden with numerous fruit trees including fig, quince, lemon, apricot and a veggie patch which adds to the lifestyle on offer.
An auto roller door provides secure garaging for 2 cars, one additional off street car park plus handy work shed and garden shed.
Perfectly positioned a short stroll to vibrant Prospect Rd with its cinema complex, eateries, boutiques, Schinellas Fresh Food and Aldi.
A choice of excellent schools nearby, zoned for both Prospect Primary and Nailsworth Primary, Adelaide and Botanic High Schools with Rosary School and Blackfriars around the corner.
Council Rates | $2,796.90 pa
SA Water | $265.20 pq
ESL | $223.75 pa
Year Built | 1885
Are you thinking of purchasing this property as an investment? Speak with our Property Management team on how we can assist you.
All information provided (including but not limited to the propertys land size, floor plan and floor size, building age and general property description) has been obtained from sources deemed reliable, however, we cannot guarantee the information is accurate and we accept no liability for any errors or oversights. Interested parties should make their own enquiries and obtain their own legal advice. Should this property be scheduled for auction, the Vendors Statement can be inspected at our office for 3 consecutive business days prior to the auction and at the auction for 30 minutes before it starts.
If you have any enquiries please contact Fox Real Estate direct on Display phone number




