For more details and viewing please call Tamir Dunning Real Estate on Display phone number
Situated just one street back from the gorgeous Aldinga Beach esplanade, this property certainly presents a myriad of opportunities to those wanting to purchase in such close proximity to the beach that you can almost taste the ocean spray. Be it for a holiday home, investment, knock down and rebuild or sub-divide and develop, you are simply spoilt for choice with this property, its location and land size - so dont miss out on this exceptional opportunity.
What we love about this property is:
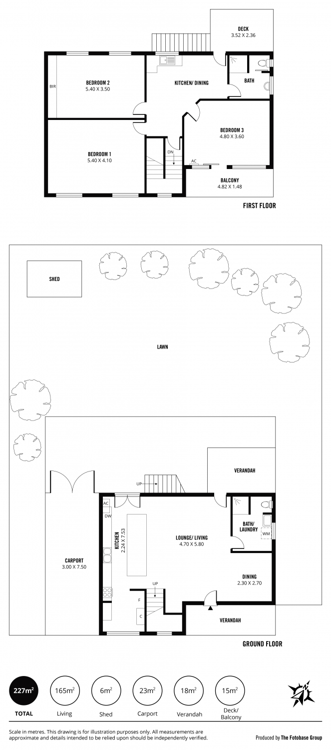
- Well maintained 3 bedroom, double story property
- 2 bathrooms (one to each level)
- 2 kitchens (one to each level)
- Reverse cycle air conditioning to both levels
- Dual balcony areas to front and back
- Single carport (UMR)
- Spacious allotment of 725m2 with exceptional development potential (STCC)
The opportunities and possibilities this property presents to the astute buyer are simply endless in what is becoming one of the most highly sought after Southern beach localities in Adelaide - and its not hard to see why. With the continuous redevelopment of the area, soon to be completed Southern Expressway extension, new super school and amazing amenities, you are simply spoilt for choice in what really is a lifestyle location.
For any more information, please dont hesitate to call or email the selling agent to discuss anything further. If you are unable to make any of the allocated open inspections, please dont hesitate to call to arrange for a private viewing.
Additional Information:
- Council Area: City Of Onkaparinga
- CT Details: Volume 5613 / Folio 738
- Zoning: General Neighbourhood - GN
- Council Rates: $391.00 Per Qtr
- Supply Rates: $70.80 Per Qtr
- Sewer Rates: $75.86 Per Qtr
- ESL: $114.45 Per Annum
- Land Area: 725m2 approx.
- Year Built: 1972
RLA 246515.
Disclaimer: all information which has been provided for has been obtained from sources in which we believe to be accurate, however, we cannot guarantee the information supplied is accurate and we accept no liability for any errors or omissions and advise all prospective buyers to undertake their own due diligence.
If you have any enquiries please contact Tamir Dunning Real Estate direct on Display phone number



